/
Data Last Updated: 04/30/2026 13:03 PT
MLS-linked model range (not an appraisal or lending value). Lower model error suggests a tighter band.
Model error about 4% (AI estimate).
$605,900
7days on marketSend a showing request for 23733 SW BLACK TORTOISE TER, Tualatin, OR, 97062.
Hand-routed to Nate Brantley, Principal Broker & Founder. Same-day reply during business hours.
Sign in once with your email to send this showing request and keep spam out of the lead system.
This home sits in Tualatin. The home was built in 2026, set into the rhythm of the neighborhood.
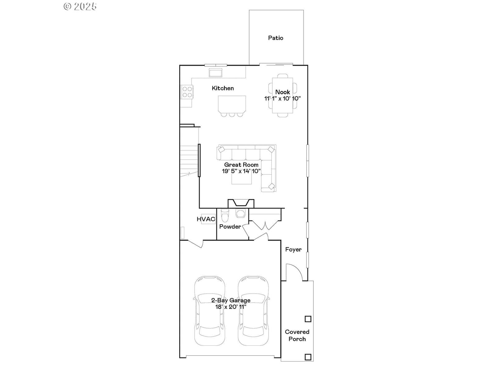
Welcome home to this stunning new construction in the Autumn Sunrise community, perfectly located in the City of Tualatin just minutes from I-5, dining, and shopping. Residents enjoy access to fantastic community amenities, including a playground, fire pit, pickleball & basketball court—ideal for both relaxation and recreation. The Kingston plan offers a thoughtfully designed two-story layout with an open-concept great room, dining area, and kitchen that flow seamlessly together, enhanced by sliding doors that open to the patio for easy indoor-outdoor living. Upstairs, four bedrooms are arranged around a central landing, including a spacious primary suite complete with an ensuite bath and walk-in closet. Designer finishes elevate the home, featuring quartz countertops, shaker-style cabinetry, a cozy fireplace with a floating mantle, elegant two-tone paint, and other luxury touches throughout. Even better, this home comes fully equipped with landscaping, fencing, and central air conditioning, plus a refrigerator, washer and dryer, and blinds—all included at no additional cost. Located on homesite #254, this home is expected to be complete in July'26 . Rendering is artist conception only. Photos are of a similar home, features and finishes will vary. *Below-market rate incentives available when financing with preferred lender.
Extras & features
Washer, Dryer, Dishwasher, Disposal, Free-Standing Gas Range, Free-Standing Refrigerator, Microwave, Plumbed For Ice Maker
Legal description
AUTUMN SUNRISE NO.3, LOT 254, ACRES 0.09
Building amenities
$624,900
11858 SE Smith Rock StHappy Valley, OR 97086
Status: EXP
4 beds · 3 baths · 2,177 SQFT
Walk Score data provided by Walk Score®