/
Data Last Updated: 04/30/2026 14:37 PT
$604,900
85days on marketSold$604,900 · March 21, 2026
Send a showing request for 9040 SW VERMILLION DR, Tualatin, OR, 97062.
Hand-routed to Nate Brantley, Principal Broker & Founder. Same-day reply during business hours.
Sign in once with your email to send this showing request and keep spam out of the lead system.
This home sits in Tualatin. The home was built in 2026, set into the rhythm of the neighborhood.
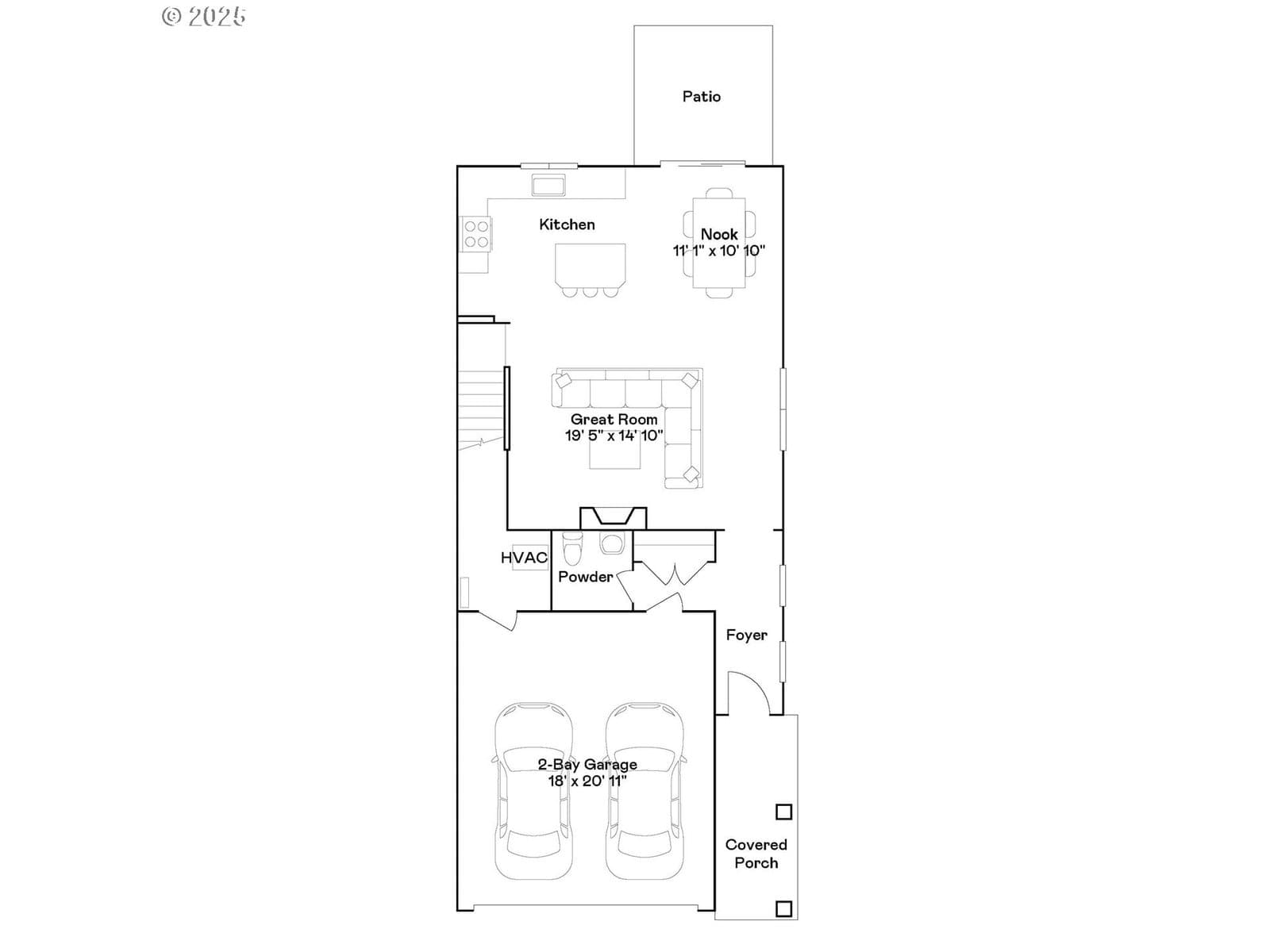
Welcome home to this stunning new construction in the Autumn Sunrise community, perfectly located in the City of Tualatin just minutes from I-5, dining, and shopping. Residents enjoy access to fantastic community amenities, including a playground, fire pit, pickleball & basketball court—ideal for both relaxation and recreation. The Kingston plan offers a thoughtfully designed two-story layout with an open-concept great room, dining area, and kitchen that flow seamlessly together, enhanced by sliding doors that open to the patio for easy indoor-outdoor living. Upstairs, four bedrooms are arranged around a central landing, including a spacious primary suite complete with an ensuite bath and walk-in closet. Designer finishes elevate the home, featuring quartz countertops, shaker-style cabinetry, a cozy fireplace with a floating mantle, elegant two-tone paint, and other luxury touches throughout. Even better, this home comes fully equipped with landscaping, fencing, and central air conditioning, plus a refrigerator, washer and dryer, and blinds—all included at no additional cost. Located on homesite #212, this home is Move-In-Ready March '26! Rendering is artist conception only. Photos are of a similar home, features and finishes will vary. *Below-market rate incentives available when financing with preferred lender.
Extras & features
Washer, Dryer, Dishwasher, Disposal, Free-Standing Gas Range, Free-Standing Refrigerator, Microwave, Plumbed For Ice Maker
Legal description
AUTUMN SUNRISE NO.3, LOT 212, ACRES 0.08
Building amenities
Walk Score® data provided by Walk Score