/
Data Last Updated: 05/27/2026 21:03 PT
$1,400,000
312days on marketSend a tour request for 31708 NE WAND RD, Troutdale, OR, 97060.
Hand-routed to Nate Brantley, Principal Broker & Founder. You can expect a same-day reply during business hours.
Your contact details stay private to our team and are only used to coordinate this showing.
Sign in once with your email to send this showing request and keep spam out of the lead system.
We do not post your info publicly or share it outside your showing request.
This home sits in Troutdale. The home was built in 2016, set into the rhythm of the neighborhood.
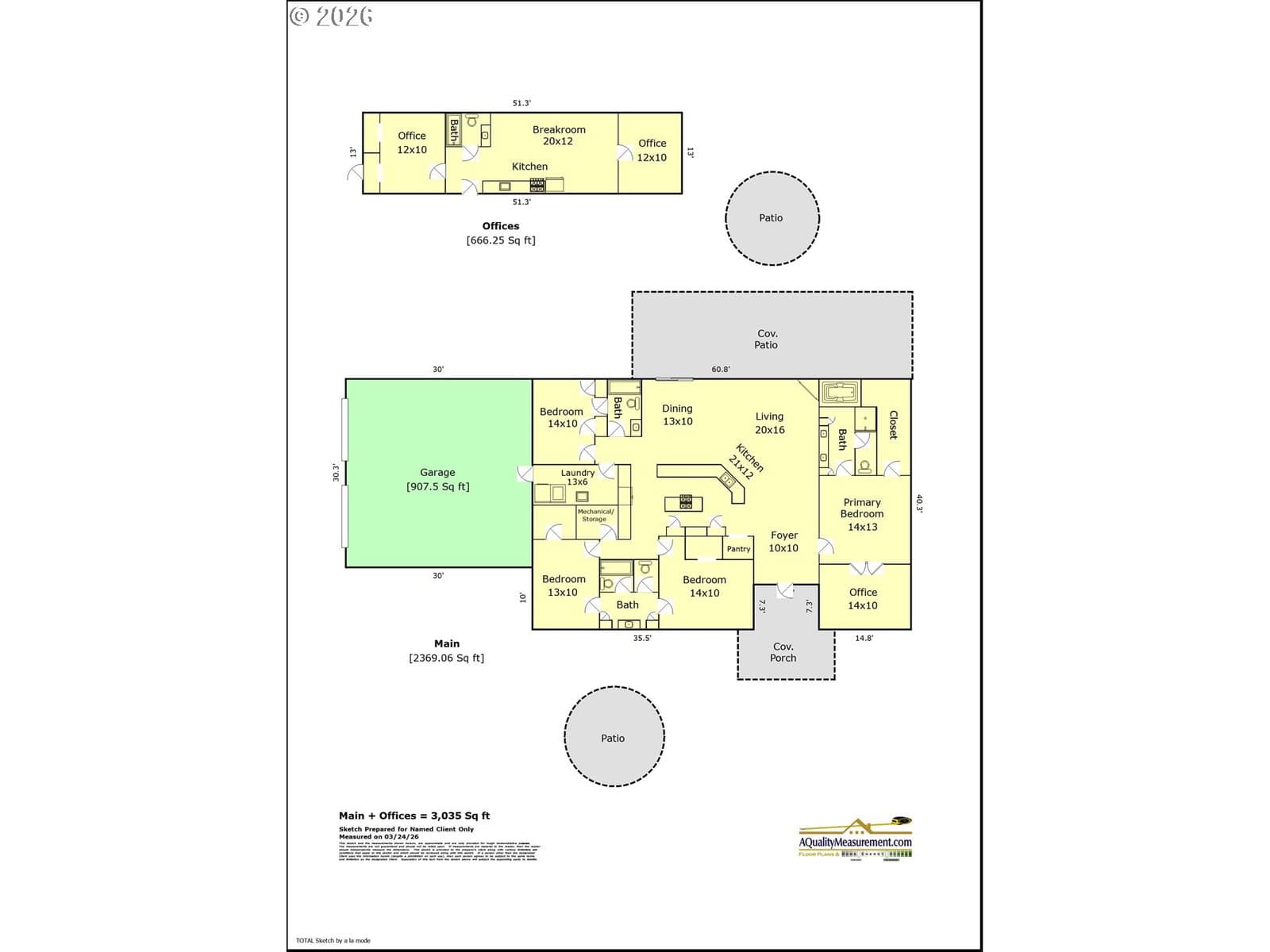
Exceptional Equestrian Property offering everything a horse enthusiast would want—and more! Situated on 6.78 usable acres, the crown jewel is a well-constructed 60x120 indoor riding arena, perfect for year-round training. The separate barn features 9 spacious 12x12 stalls, includes 4 box stalls, five stalls with private runs, a hot/cold wash rack, HUGE tack room, and 13 outdoor paddocks with shelters, each with power and water access. A 70 ft round pen adds to the versatility of this turnkey setup. Inside the barn, enjoy the convenience of an office with washer and dryer, and bathroom, plus a cozy area for overnight guests traveling with horses. The 24x30 shop is fully finished with a concrete floor, plumbed for heat, and ideal for hobbies or equipment storage. There’s also an additional equipment outbuilding perfect for tractors and farm tools. The home is 2,330 sq ft and designed for comfort and easy living, featuring a huge open kitchen ideal for entertaining, all hard wood flooring, and an inviting primary suite with walk-in closet, dual sinks, soaking tub, walk-in shower, and private office. Two additional bedrooms share a Jack and Jill bath with a private shower, and a fourth bedroom has its own full bath—perfect for guests or a home office setup.This property blends functionality, luxury, and lifestyle—whether you're a competitive rider, casual horse lover, or just looking for a peaceful country retreat. Take advantage of a NO COST RATE BUY DOWN with our preferred lender—enjoy a lower mortgage rate for the first year, saving you money upfront! Ask agent for details! This is capped at conventional loan amounts and can't be used on a jumbo loan-Freddie/Fannie loan limit is $832,750 and needs to be locked by end of June.
Extras & features
Cooktop, Dishwasher, Double Oven, Free-Standing Range, Free-Standing Refrigerator, Plumbed For Ice Maker, Range Hood
Legal description
BANNER AC, LOT 37, FARM DISQUAL, 2010-2014, 5.78 ACRES, $7,031.20
Walk Score data provided by Walk Score®