/
Data Last Updated: 05/27/2026 22:03 PT
Send a tour request for 287 E 3RD ST, Lowell, OR, 97452.
Hand-routed to Nate Brantley, Principal Broker & Founder. You can expect a same-day reply during business hours.
Your contact details stay private to our team and are only used to coordinate this showing.
Sign in once with your email to send this showing request and keep spam out of the lead system.
We do not post your info publicly or share it outside your showing request.
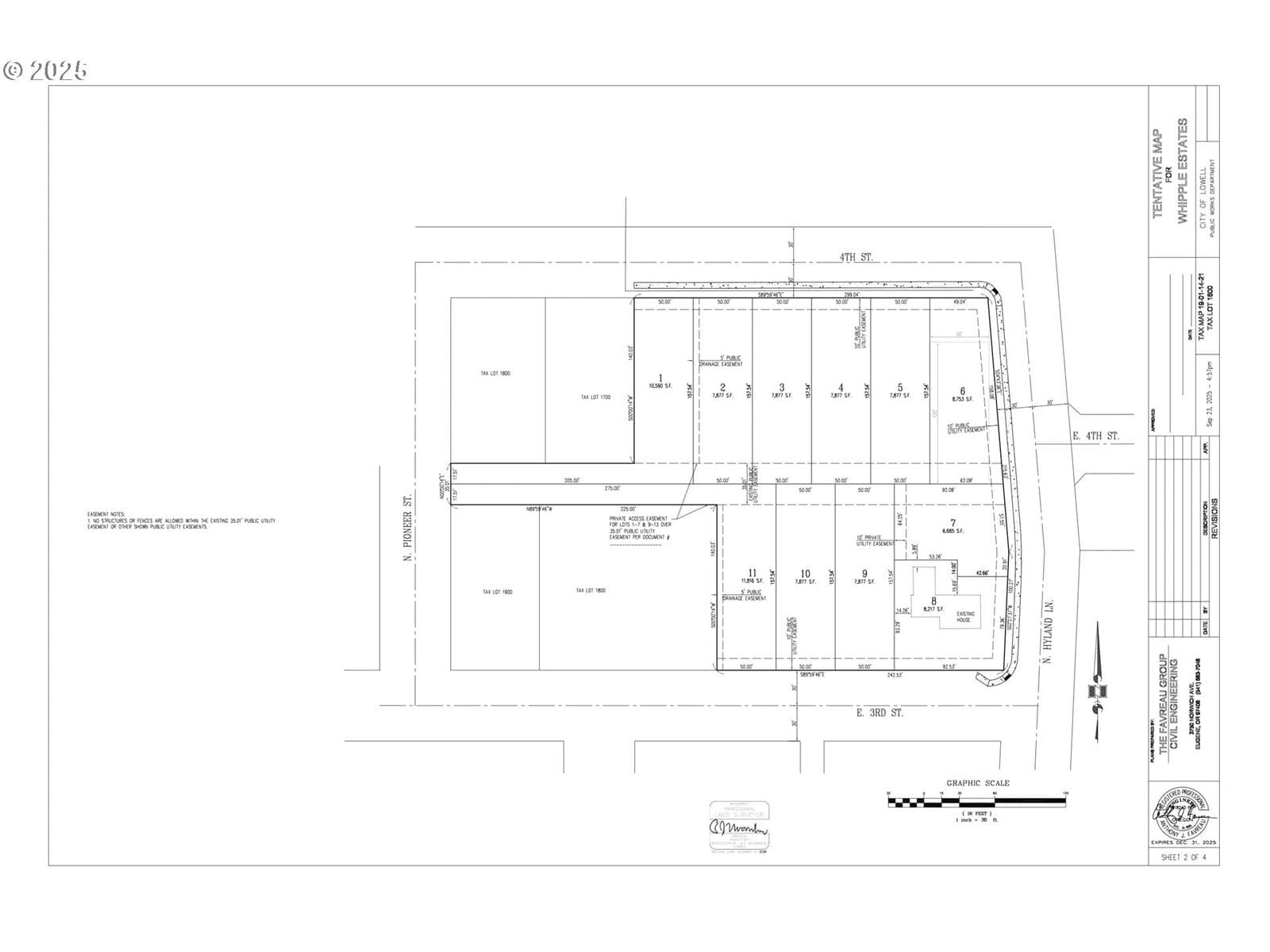
Exceptional development opportunity in Lowell, just 20 minutes from Eugene. This 2.12-acre parcel includes tentative subdivision approval with the City of Lowell for 11 total lots, offering builders and investors a major head start on a highly desirable small-scale subdivision. The property also includes an existing newly remodeled 2 bedroom home that is currently rented month-to-month, providing income during the development process. The site is largely cleared, utilities are nearby, soils are favorable, and the project aligns with Lowell’s current residential growth needs.This is an ideal opportunity for a builder or developer seeking a manageable, profitable project supported by city momentum. More information regarding pre approval packet with the City of Lowell, engineers concept plans, and city correspondence available.
Walk Score data provided by Walk Score®