/
$410,000
3days on market$410,000
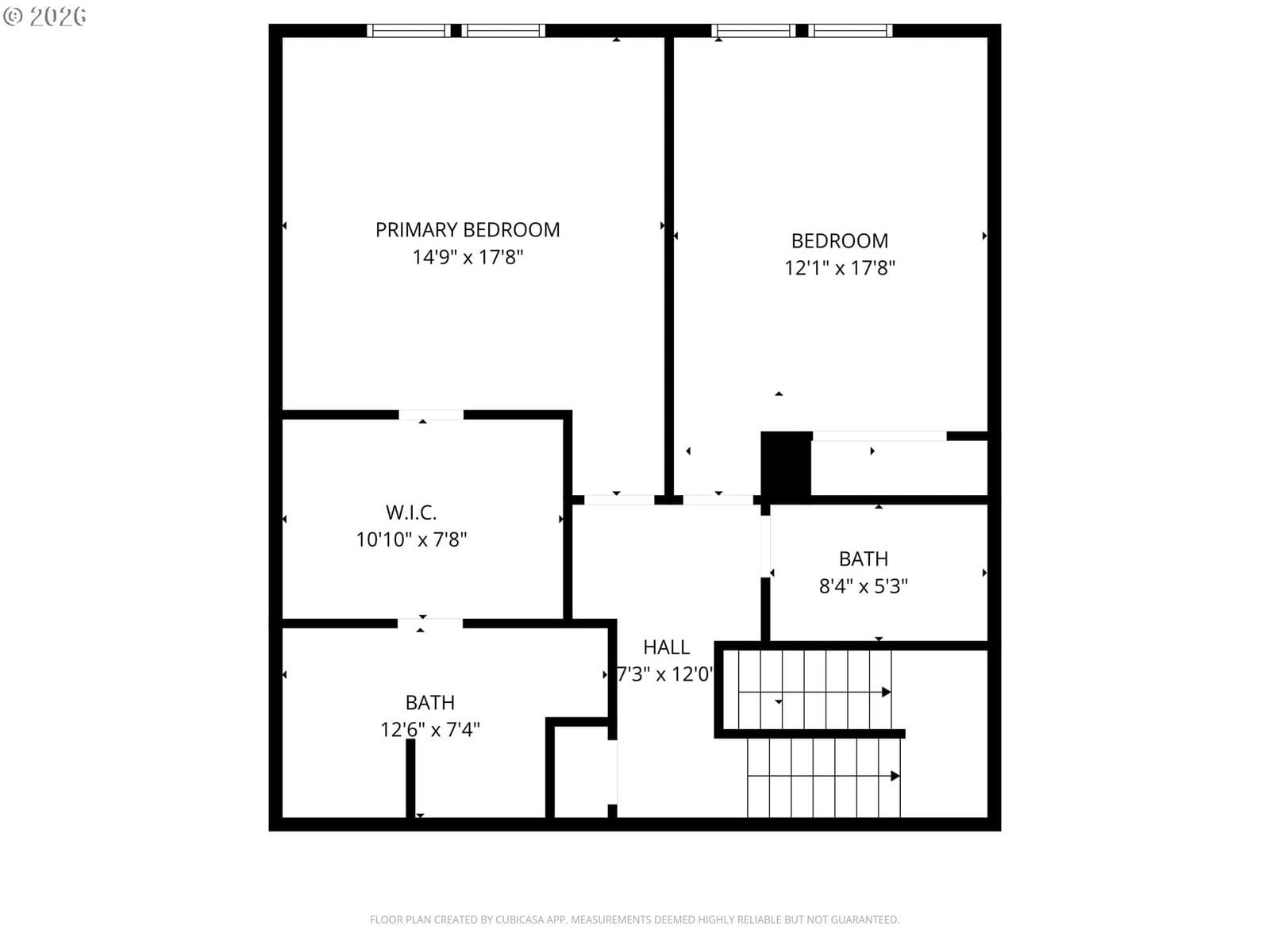
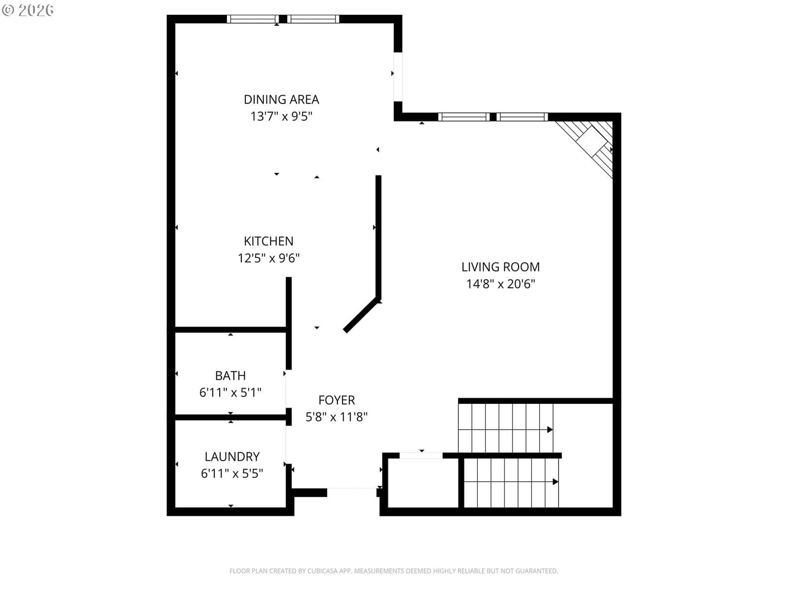
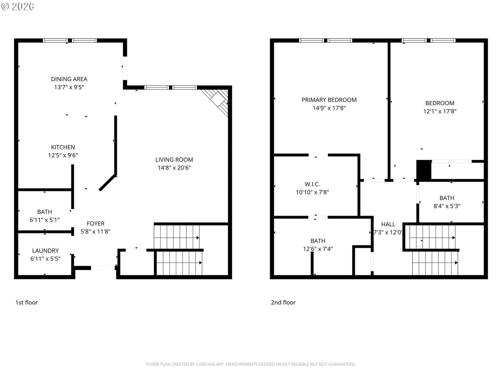
This gem sits up high and is nestled in a quiet, tree-lined spot, ideal for bird watching and enjoying nature and all the seasons from your own private perch. Away from the hustle and bustle, yet close to Sherwood shops and restaurants. Enjoy this 2 bedroom, 2-story condo complete with granite counters, immaculate hardwood floors, gas fireplace, whimsical mural, expansive owner's suite and views of the greenspace from every room. Tons of storage (as well as a locked storage unit and 2 deeded parking spots), in-unit laundry room, large dining area, plenty of space and close to all of Sherwood's conveniences. Welcome home to this pristine condo in coveted Hunter's Ridge.
Extras & features
Dishwasher, Disposal, Free-Standing Range, Free-Standing Refrigerator, Microwave
Legal description
HUNTERS RIDGE CONDO SUPP NO.1: RECLASS TRACT A, LOT 319
Building amenities
Walk Score data provided by Walk Score®