/
Data Last Updated: 05/17/2026 16:41 PT
$799,900
290days on marketSold$779,900 · February 25, 2026
Send a tour request for 3604 NE 170TH ST, Vancouver, WA, 98686.
Hand-routed to Nate Brantley, Principal Broker & Founder. You can expect a same-day reply during business hours.
Your contact details stay private to our team and are only used to coordinate this showing.
Sign in once with your email to send this showing request and keep spam out of the lead system.
We do not post your info publicly or share it outside your showing request.
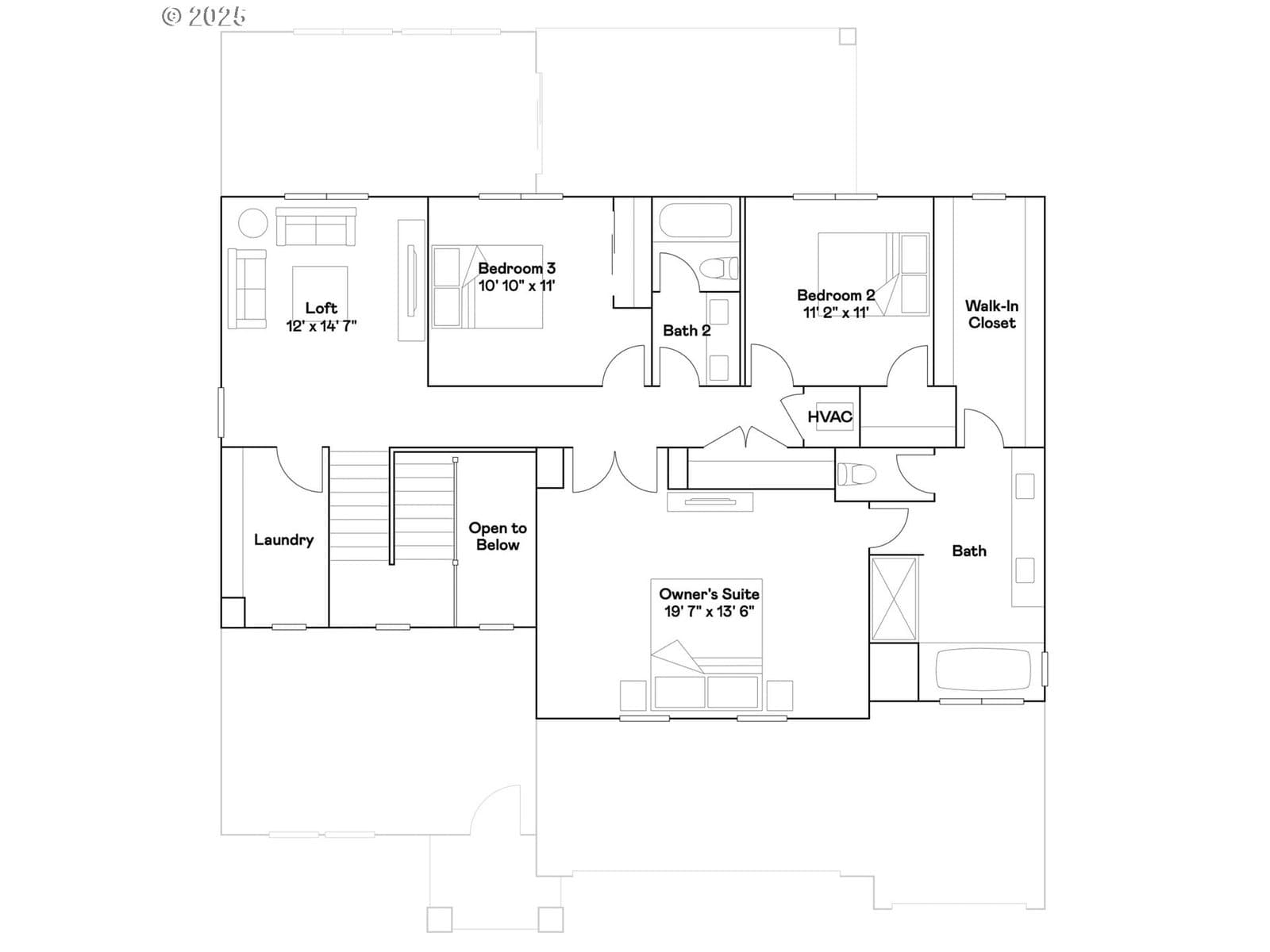
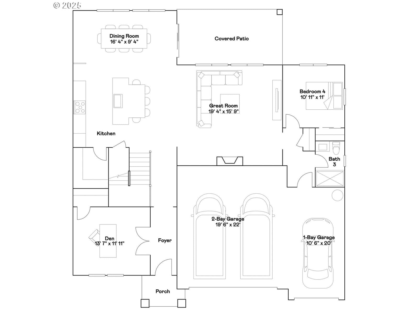
Set in SALMON CREEK RIDGE, this home sits in Vancouver. The home was built in 2025, set into the rhythm of the neighborhood.
This two-story new construction Hammond home in Salmon Creek Ridge features a three-car garage and is just minutes from Salmon Creek trails, I-5, and shopping. The main floor includes a private bedroom and bath, a den off the entry, and an open kitchen, dining area, and great room warmed by a fireplace. Upstairs, a loft connects three bedrooms, including a primary suite with a soaking tub and walk-in closet. The kitchen includes quartz countertops, shaker-style cabinets, and a vertical tile backsplash. LVP flooring runs through the kitchen and entry, and LVT covers baths and laundry. The primary bath has a tiled shower with a separate tub. Wooden shelving, landscaping, and fencing complete the home. Central air conditioning, a refrigerator, washer and dryer, and blinds are included. Located on homesite 49, this home is move in ready. Flex credit/closing cost incentive available when financing with preferred lender! Use towards rate buydown and closing costs. Builder Paperwork, 1% E Mto FATCO,
Extras & features
Oven, Washer, Dryer, Convection Oven, Cooktop, Dishwasher, Disposal, Free-Standing Refrigerator, Microwave, Plumbed For Ice Maker
Legal description
Lot 49 Salmon Creek Ridge
Building amenities
Walk Score® data provided by Walk Score