/
Data Last Updated: 05/27/2026 22:03 PT
$479,000
Send a tour request for 7904 TAYLOR ST, Portland, OR, 97215.
Hand-routed to Nate Brantley, Principal Broker & Founder. You can expect a same-day reply during business hours.
Your contact details stay private to our team and are only used to coordinate this showing.
Sign in once with your email to send this showing request and keep spam out of the lead system.
We do not post your info publicly or share it outside your showing request.
This home sits in Portland. The home was built in 1912, set into the rhythm of the neighborhood.
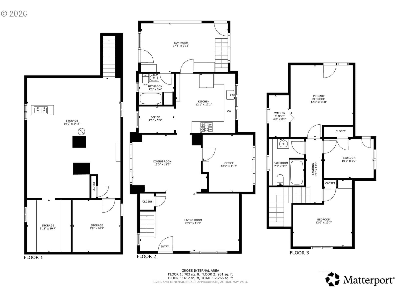
Incredibly charming farmhouse just moments away from hot and happening downtown Montavilla. Enter through the quaint covered front porch and be greeted with an abundance of 1912 details. From the hardwood floors, built-ins, nooks and coved archways, this home has all the character to boot. Dining room is accompanied by soaring ceilings and main level bedroom, den or office. Enjoy the large kitchen with wood cabinets, modern light fixtures and attached nook ready for your ideas. Host dinner parties or sip your morning coffee from the back sun porch with a surround view of the backyard and darling brick patio. Upstairs, you'll find the primary bedroom with walk-in closet and vaulted ceilings along with 2 additional bedrooms and full bath. Rare alley-fed oversized 2-car detached garage is ready for all your toys and hobbies plus you'll be able to capitalize on the unlimited potential of this already blossoming fenced backyard space. Conveniently located and just moments from a plethora of some of Portland's favorite restaurants, cafes and shops not to mention the beautiful 176-acre Mt. Tabor park.
Walk Score data provided by Walk Score®