/
Data Last Updated: 05/17/2026 15:56 PT
$649,000
60days on marketSend a tour request for 778 PACK LN, Glendale, OR, 97442.
Hand-routed to Nate Brantley, Principal Broker & Founder. You can expect a same-day reply during business hours.
Your contact details stay private to our team and are only used to coordinate this showing.
Sign in once with your email to send this showing request and keep spam out of the lead system.
We do not post your info publicly or share it outside your showing request.
This home sits in Glendale. The home was built in 1955, set into the rhythm of the neighborhood.
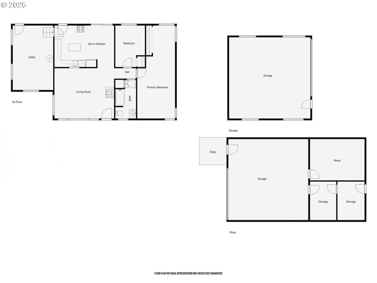
Escape to 160 Acres of Private Paradise: Dreaming of self-sufficiency without sacrificing modern conveniences? This exceptional property delivers both seclusion and accessibility with high-speed internet and major freeway access just minutes away. The cozy home is a 1,008 sq. ft. retreat featuring 2 bedrooms and 1 bath, recently refreshed with stainless steel appliances, fresh exterior paint, and a carport. Comfort is assured with a Fujitsu mini-split heating/cooling system (2025) and updated utilities including a water heater (2024) and washing machine (2025). Outbuildings & Infrastructure: Detached 2-car garage (freshly painted). 1,800 sq. ft. greenhouse with electrical, sliding doors, and light-deprivation screen for year-round growing. 960 sq. ft. shop with cement floors, 3 rooms, 2025 garage door, Daikin mini-splits, and water plumbed to the building. A 465 sq. ft. workshop with an additional 1,278 sq. ft. of extended outdoor coverage. 220 sq. ft. auxiliary shed.200 sq. ft. tin shed near the house (currently outdoor kitchen).A hand-operated well pump as a backup to the electric pump. Guest quarters in progress - sheet rocked, wired, and ready for your finishing touches. Land & Lifestyle: Enjoy evenings in the hot tub under star-filled skies unpolluted by light. The land offers marketable timber, pastures for livestock, 2 garden spaces, multiple fruit trees, and four seasonal ponds. The road has recently been graded and refreshed with a new layer of rock for improved access and durability. At 160 acres, this property qualifies for two annual Landowner Preference tags for hunting on your own land. Square footage based on tax records and seller estimates. Buyers encouraged to conduct independent due diligence.
Extras & features
Washer, Dryer, Free-Standing Gas Range, Free-Standing Refrigerator, Range Hood
Legal description
TRACT E1/2NE1/4 (IN FIRE) SEE R54692 FOR BAL TL, ACRES 5.00
Walk Score data provided by Walk Score®