/
Data Last Updated: 05/17/2026 16:02 PT
$550,000
Send a tour request for 1416 FALCON LOOP, Independence, OR, 97351.
Hand-routed to Nate Brantley, Principal Broker & Founder. You can expect a same-day reply during business hours.
Your contact details stay private to our team and are only used to coordinate this showing.
Sign in once with your email to send this showing request and keep spam out of the lead system.
We do not post your info publicly or share it outside your showing request.
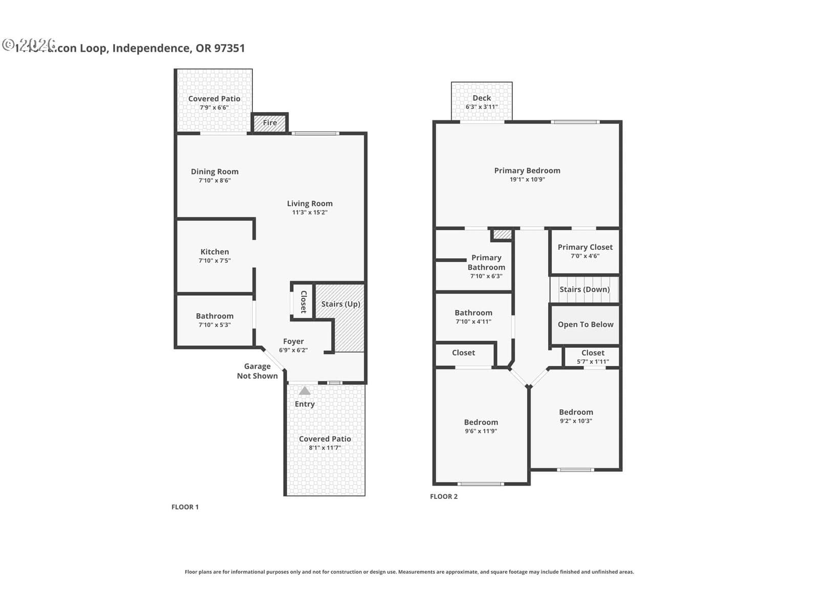
This home sits in Independence. The home was built in 2004, set into the rhythm of the neighborhood.
Townhome-style duplex with functional layouts and private fenced backyards. Open main-level living with the living room off the kitchen featuring a gas fireplace, eat-up bar, and dedicated dining area, plus a sliding door that opens to the patio and yard for easy indoor-outdoor flow. Main floor also includes laundry and a convenient half bath. Upstairs offers all three bedrooms, including a primary suite with vaulted ceilings, en suite bath, walk-in closet, and private deck, along with a full hallway bathroom. Well-designed layout provides separation between living and sleeping areas, offering flexibility for comfortable living or strong rental appeal.
Walk Score® data provided by Walk Score