/
$929,000
4days on market$929,000
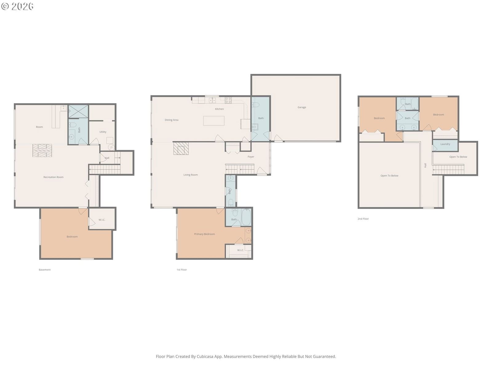
Location! Location! Location! Nestled in a highly desirable Lake Oswego location, this home offers incredible potential for those looking to create their dream space. Featuring a well-designed and functional floor plan, the home provides a great layout to build upon and customize to your taste. Enjoy a sense of privacy in this peaceful setting, while still being conveniently close to parks, shopping, dining, and top-rated schools. The property is ready for your vision and updates—bring your ideas and transform this home into something special. A rare opportunity to invest in a prime location and build equity!
Extras & features
Oven, Dishwasher, Free-Standing Range, Trash Compactor
Legal description
1855 PALISADES HGTS #5 LT 9
Walk Score data provided by Walk Score®