/
Data Last Updated: 05/30/2026 15:07 PT
$649,900
45days on marketSend a tour request for 13936 SW UPLANDS DR, Tigard, OR, 97223.
Hand-routed to Nate Brantley, Principal Broker & Founder. You can expect a same-day reply during business hours.
Your contact details stay private to our team and are only used to coordinate this showing.
Sign in once with your email to send this showing request and keep spam out of the lead system.
We do not post your info publicly or share it outside your showing request.
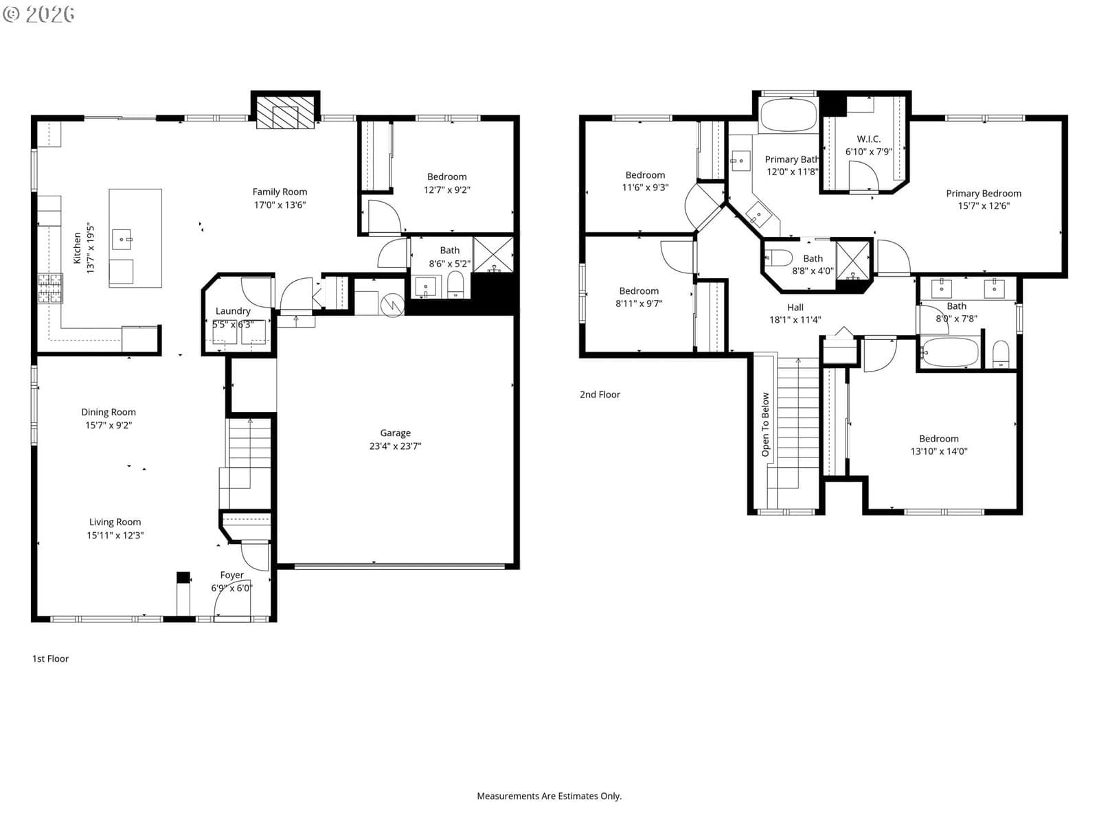
This home sits in Tigard. The home was built in 1998, set into the rhythm of the neighborhood.
Welcome to this beautifully remodeled, move-in-ready home on a spacious corner lot! Featuring five bedrooms and three full baths—including a ground-level bedroom and adjacent bath—it blends modern ascetics with peace of mind. The spacious custom-designed kitchen is a chef’s dream, and the new gas fireplace offers cozy warmth even if the power goes out. Outside, enjoy a private, tree-filled yard—perfect for nature lovers, easily certifiable as a natural habitat. Major remodel in 2022 includes all new light fixtures, all new plumbing fixtures except showers, fully equipped kitchen, granite and quartz countertops, flooring throughout, and paint inside and out. The roof and hot water heater are newer, and home comes with a one-year warranty, this home offers a serene, stylish lifestyle near Progress Ridge with fantastic shops and restaurants.
Extras & features
Gas Water Heater, Dishwasher, Disposal, Double Oven, Free-Standing Range, Free-Standing Refrigerator, Plumbed For Ice Maker
Legal description
HEIGHTS, LOT 56, ACRES 0.14
Walk Score® data provided by Walk Score