/
$284,500
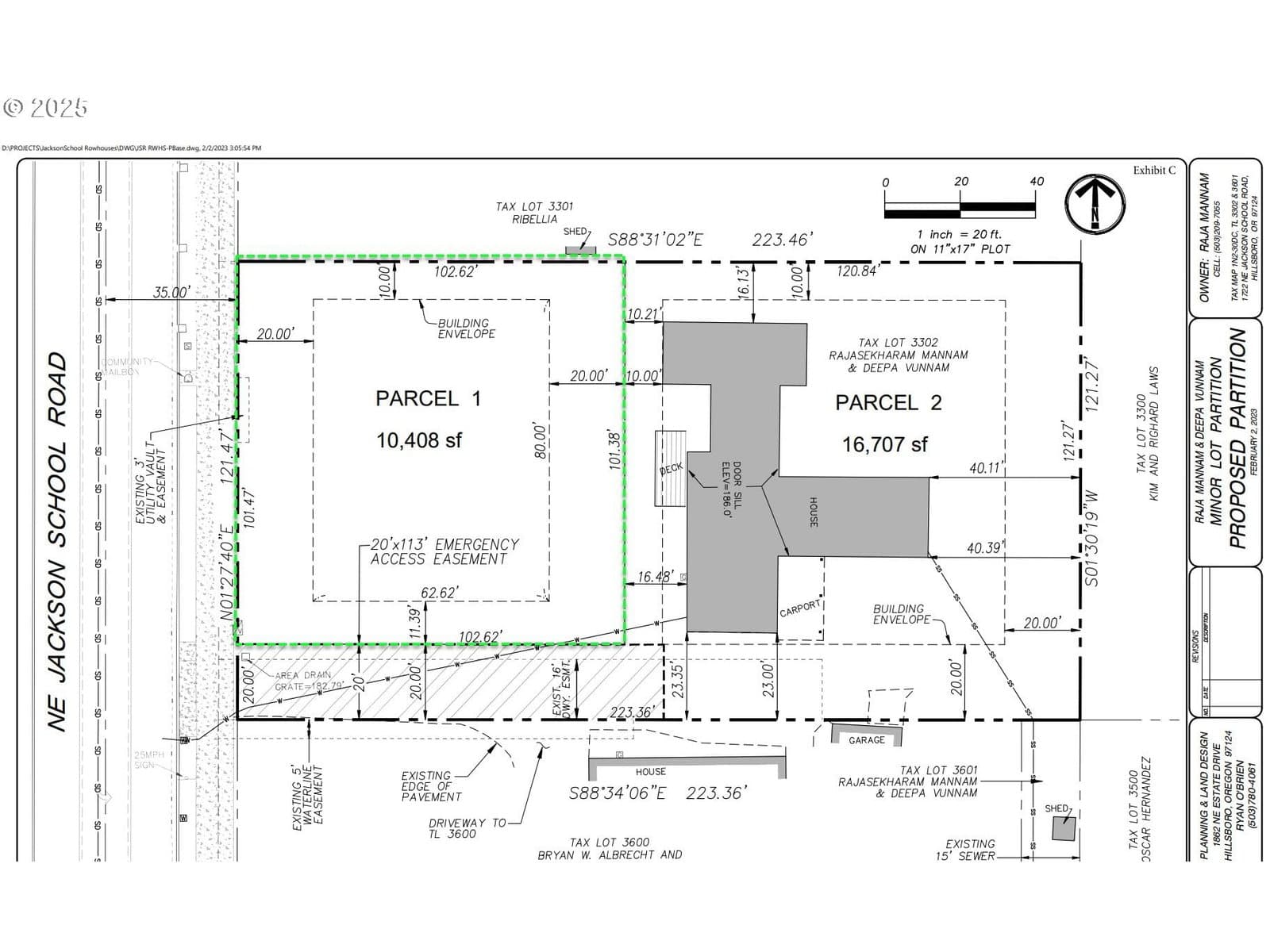
217days on marketDRIVE BY ONLY - Call Broker - Property is rented- DO NOT GO ON LAND WITHOUT AN APPOINTMENT! Live-Build-Thrive at Hillsboro's Best building lot. The best schools, access to Old Town, parks, and US 26! Check this out! First time offers in this 1/4 Acre lot in the Jackson School District of Hillsboro. The address listed is for the home, which is now on its own lot. A package deal with the lot and the home with potential. This lot offers access to all city services, is level, and is ready for building. The driveway is already in and will be shared with beautiful adjacent homes. Great schools, minutes to US 26, Intel, MAX, and historic Downtown Hillsboro. This lot will support a custom dream home, a cottage cluster, a triplex, a fourplex, or townhomes. The shape, buildable area, and home values in the area make this a perfect place to settle in and build for your future! A home with a shop and or an ADU? All of that can happen on this lot, which is 100% usable—plenty of room for a lovely home with a large yard and outdoor spaces.Additionally, this lot is ideal for Solar Energy, with a great Southern orientation and no trees blocking the sun. So walkable and bikable. Check out the attached maps. Driveway, but please get an appointment before going onto the property. Oh- and NO HOA!!
Legal description
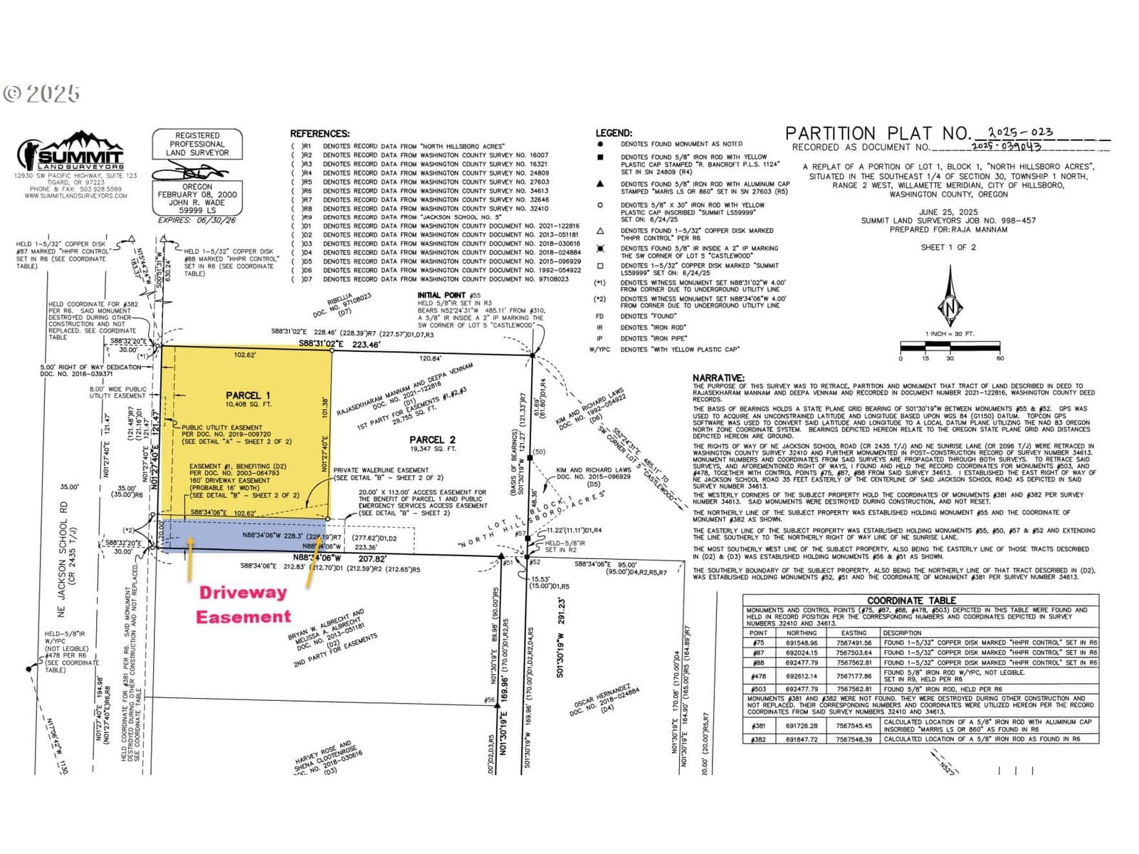
Partition Plan 2025-023 Parcel 1, 10,408 SF
$284,500
Walk Score data provided by Walk Score®