/
Data Last Updated: 05/31/2026 07:07 PT
$800,000
73days on marketSold$825,000 · March 23, 2026
Send a tour request for 3842 SE 41ST AVE, Portland, OR, 97202.
Hand-routed to Nate Brantley, Principal Broker & Founder. You can expect a same-day reply during business hours.
Your contact details stay private to our team and are only used to coordinate this showing.
Sign in once with your email to send this showing request and keep spam out of the lead system.
We do not post your info publicly or share it outside your showing request.
This home sits in Portland. The home was built in 2014, set into the rhythm of the neighborhood.
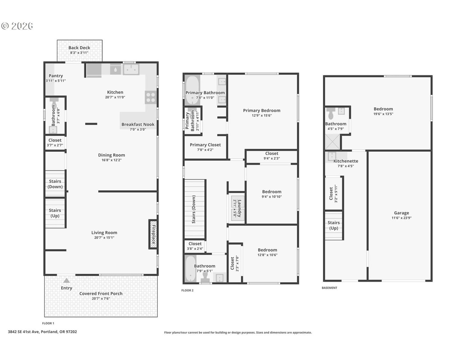
Welcome home to this stunning Craftsman in desirable Hosford-Abernethy/Creston! Built in 2014, the home is classically inspired and architect designed with quality upgrades and flexible living space. This 4-bedroom, 3.5-bathroom house still lives like new, featuring beautiful hardwood floors, high ceilings, and abundant natural light throughout the main living areas. The inviting living room showcases a cozy gas fireplace and built-in features, creating a warm and welcoming atmosphere. The kitchen is well equipped with quartz countertops, maple cabinets, stainless steel appliances, gas range, built-in microwave, dishwasher, disposal, eat bar, and a free-standing refrigerator: perfect for everyday living and entertaining. Triple-pane vinyl windows help enhance comfort and energy efficiency. The finished daylight lower level offers a separate exterior entrance, a bedroom with en suite bathroom, and a kitchenette: ideal for multi-generational living, guest quarters, or potential ADU possibilities. Enjoy outdoor living with a fantastic covered front porch with gate, rear deck, patio, fenced yard, and tool shed, great for relaxing or entertaining. Recent improvements include fresh paint and updated solar panels installed in September 2024 (transferable lease ending in 2034). Additional features include central A/C, high-efficiency forced-air heating, laundry, water purifier, and attached garage with driveway parking. Conveniently located near parks, shops, restaurants, and public transit, this stately home is a must see! Mortgage savings may be available for buyers of this listing. [Home Energy Score = 9. HES Report at https://rpt.greenbuildingregistry.com/hes/OR10149170]
Extras & features
Washer, Dryer, Dishwasher, Disposal, Free-Standing Gas Range, Free-Standing Refrigerator, Microwave, Plumbed For Ice Maker, Range Hood
Legal description
NAPLES HTS, BLOCK 1, LOT 8
Walk Score® data provided by Walk Score