/
$474,500
55days on marketSold$465,000 · March 12, 2026
$474,500
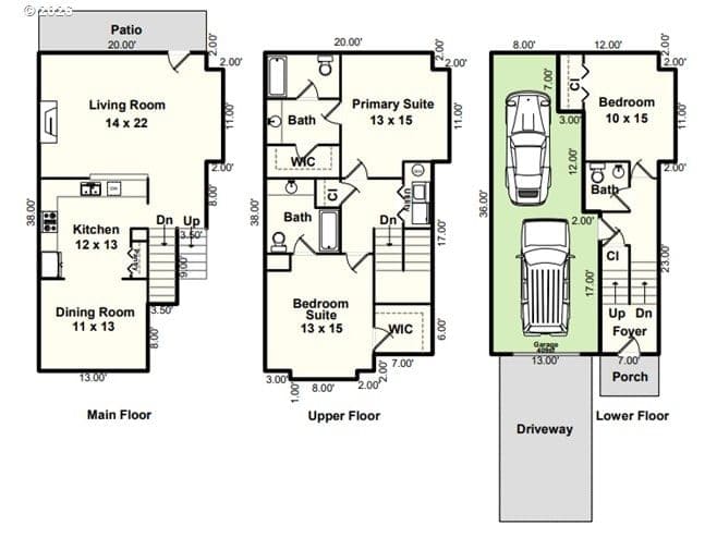
Exceptional Tanasbourne townhome with a welcoming covered front porch and 2 spacious primary suites, desirably located near Whole Foods, Tanasbourne shopping & dining, Nike, Intel, and magnificent Magnolia Park. The bright, airy great room features a cozy slate stone gas fireplace and engineered hardwood floors that extend throughout the main. Centerpiece kitchen has granite counters, tile backsplash, SS/gas appliances, and pantry. Entertain effortlessly in the light-filled formal dining room off the kitchen (could also be a fantastic home office). Upstairs, dual primary suites boast walk-in closets with built-in shelves, ensuite bathrooms with tile floors and tile vanities, and one suite with vaulted ceilings. Convenient laundry closet located in the hall. Lower level includes a full bedroom, half bath, and access to the finished 2-car tandem garage. Step outside to a fully fenced private patio with a planting area—perfect for relaxing or entertaining. HOA includes exterior maintenance and front yard landscaping (new exterior paint completed in July 2025). Off-street (3 locations) and on-street parking is available close by, along with wonderful amenities within walking distance. [Home Energy Score = 7. HES Report at https://rpt.greenbuildingregistry.com/hes/OR10244419] HOA covers exterior maintenance, snow removal, front yard landscaping.
Extras & features
Gas Water Heater, Washer, Dryer, Dishwasher, Disposal, Free-Standing Range, Free-Standing Refrigerator, Microwave, Plumbed For Ice Maker
Legal description
PARKS AT TANASBOURNE, LOT 34, ACRES 0.04
Building amenities
Walk Score data provided by Walk Score®