/
$739,000
3days on market$739,000
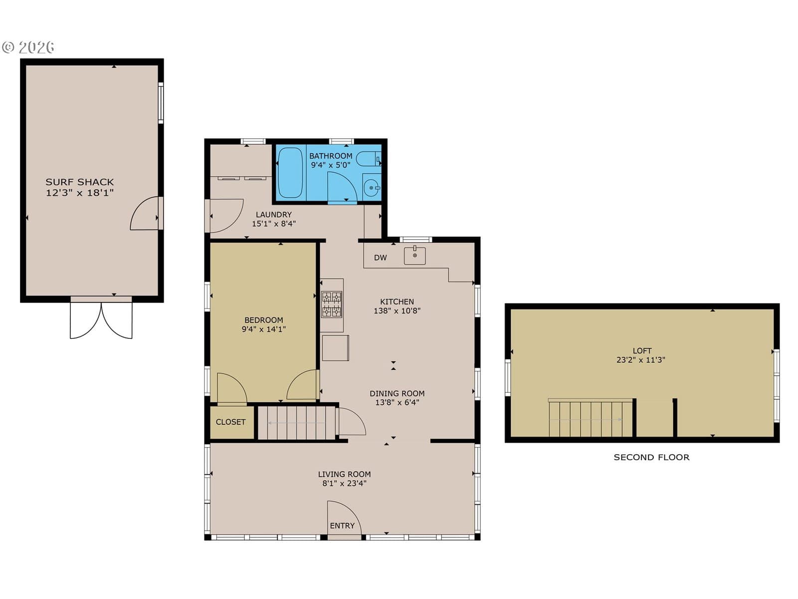
Full of vintage character, this darling 1929 Manzanita cottage sits just half a block from the beach and one block from downtown in a truly walk-everywhere location. Featuring original fir floors, ocean views from the living room and front yard, updated with modern comforts, including a mini-split in the bedroom for heating and cooling. Fully fenced yard is ready for your four-legged beach buddy. Outdoor shower, generous parking, and ample decking make beach living easy. Detached semi-finished garage has been converted into a fun surf shack-style bonus space. Fully furnished and sold turnkey.
Extras & features
Washer, Dryer, Built-In Range, Free-Standing Refrigerator, Microwave
Legal description
See Description
Walk Score data provided by Walk Score®