/
Data Last Updated: 05/17/2026 16:02 PT
$425,000
96days on marketSold$425,000 · March 19, 2026
Send a tour request for 4857 NW BLANDY TER, Portland, OR, 97229.
Hand-routed to Nate Brantley, Principal Broker & Founder. You can expect a same-day reply during business hours.
Your contact details stay private to our team and are only used to coordinate this showing.
Sign in once with your email to send this showing request and keep spam out of the lead system.
We do not post your info publicly or share it outside your showing request.
This home sits in Portland. The home was built in 2006, set into the rhythm of the neighborhood.
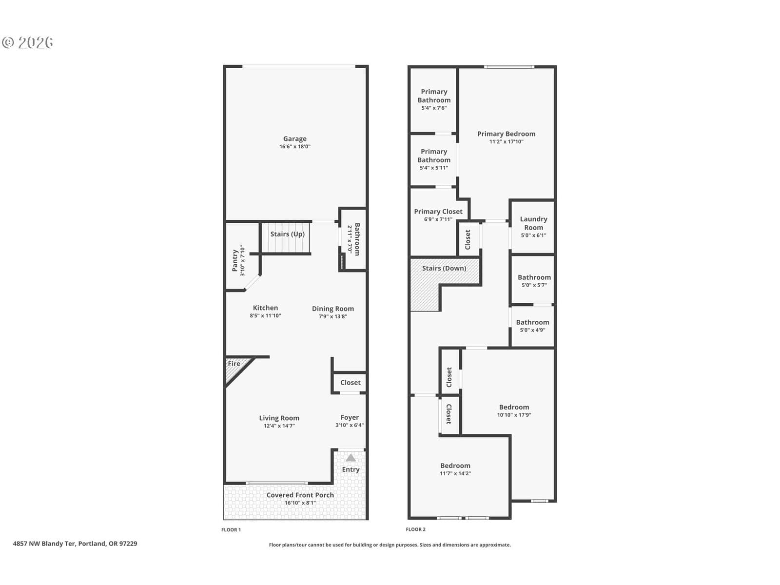
OPEN HOUSE 2/28-3/1 FROM 1-3PM Welcome home to this well-located 3-bedroom, 2.1-bath townhouse offers 1,454 square feet of thoughtfully designed living space, featuring a small loft and a 2-car garage. The open floor plan is efficient and comfortable, with the loft providing just the right amount of extra space for a compact home office, reading nook, or flex area. The primary suite includes a private bath, while two additional bedrooms share a full bath, creating a practical and inviting layout. Low-maintenance living and smart use of space make this home ideal for today’s lifestyle. The home has new interior paint and kitchen floors. It’s all about the location with easy access to Bethany Village, Claremont Golf Course, and nearby high-tech employers, this townhouse puts shopping, dining, recreation, and commuting all within minutes.
Extras & features
Gas Water Heater, Washer, Dryer, Dishwasher, Disposal, Free-Standing Gas Range, Free-Standing Refrigerator, Microwave, Plumbed For Ice Maker
Legal description
ARBOR PARC, LOT 135, ACRES 0.03
Building amenities
Walk Score data provided by Walk Score®