/
Data Last Updated: 05/10/2026 06:48 PT
MLS-linked model range (not an appraisal or lending value). Lower model error suggests a tighter band.
Model error about 11% (AI estimate).
$410,000
70days on marketSend a showing request for 77038 WESTRIDGE AVE, Westfir, OR, 97492.
Hand-routed to Nate Brantley, Principal Broker & Founder. Same-day reply during business hours.
Sign in once with your email to send this showing request and keep spam out of the lead system.
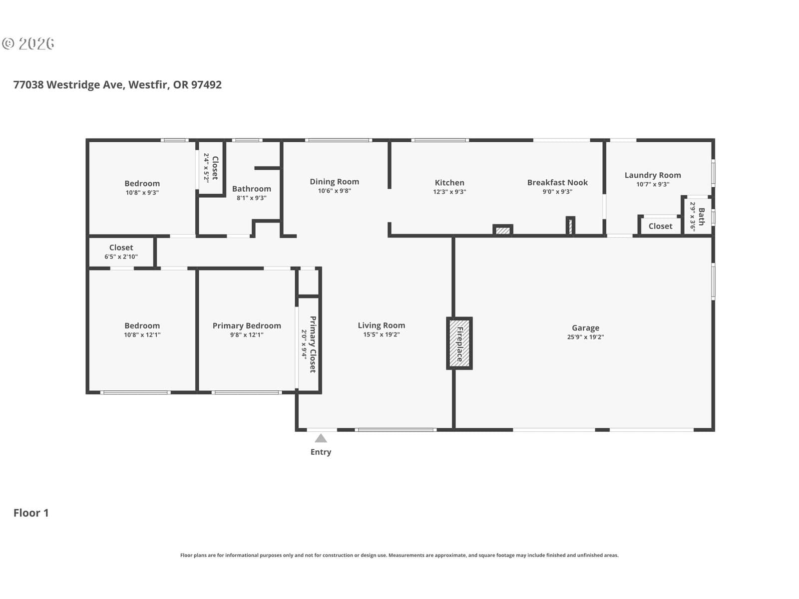
This home sits in Westfir. The home was built in 1955, set into the rhythm of the neighborhood.
Located in the well-established Westridge neighborhood and just moments from the Willamette River with private river access, this nicely updated home offers comfort, charm, and convenience. The remodeled kitchen features granite countertops, stainless steel appliances, and custom cabinetry. Beautifully restored hardwood floors flow throughout the main living spaces, complemented by updated bathrooms.Step outside to a fully fenced backyard designed for both relaxation and abundance. Enjoy 11 fruit trees including a variety of apples, pears, plums, and cherries, along with established blueberry and raspberry bushes — your own private mini orchard. Mature landscaping creates a peaceful, tranquil setting perfect for entertaining or unwinding.Ideally situated for enjoying all the outdoor recreation the Willamette National Forest has to offer — including hiking, boating, mountain biking, fishing, skiing, and more.
Extras & features
Convection Oven, Dishwasher, Free-Standing Range, Free-Standing Refrigerator, Range Hood
Legal description
21-25-12-23-01800
Walk Score® data provided by Walk Score