/
Data Last Updated: 05/17/2026 16:02 PT
$849,900
103days on marketSold$849,900 · February 20, 2026
Send a tour request for 3874 NW LORIANN DR, Portland, OR, 97229.
Hand-routed to Nate Brantley, Principal Broker & Founder. You can expect a same-day reply during business hours.
Your contact details stay private to our team and are only used to coordinate this showing.
Sign in once with your email to send this showing request and keep spam out of the lead system.
We do not post your info publicly or share it outside your showing request.
Set in THOMPSON HIGHLANDS, this home sits in Portland. The home was built in 1996, set into the rhythm of the neighborhood.
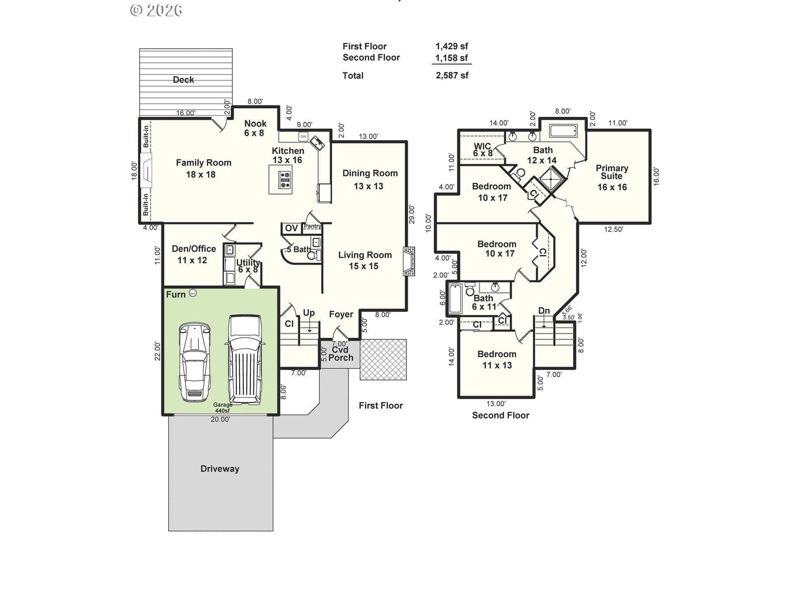
*OPEN SUN 2/22 FROM 2-4 PM* This charming Craftsman on a quiet Thompson Park cul-de-sac has been thoughtfully updated with new carpets and fresh paint throughout. Soaring ceilings and a hardwood foyer welcome you to the formal living and dining rooms with fireplace and vaulted ceilings. The chef’s kitchen shines with granite counters and full height granite backsplash, white cabinets, island with seating, Miele dishwasher, Wolf cooktop, GE Monogram oven/microwave, and a sunny eat-in nook with deck access to the spacious backyard—perfect for entertaining. Family room features built-ins, fireplace, and new deck access. Upstairs, the primary suite offers French doors, backyard views, ensuite with granite counters, soaker tub, and walk-in closet. Three additional bedrooms and updated hall bath complete the upper level. Home highlights include new roof (2018), new fence, low-E windows, encapsulated crawlspace, Carrier Infinity HVAC (2019), fast-recovery water heater (2024), and pre-list inspection. Tucked between Findley Elementary and Bonny Slope Park—move-in ready!
Extras & features
Oven, Gas Water Heater, Washer, Dryer, Built-In Range, Convection Oven, Cooktop, Dishwasher, Disposal, Microwave, Wine Cooler
Legal description
THOMPSON PARK, LOT 5, ACRES 0.19
Building amenities
Walk Score data provided by Walk Score®