/
Data Last Updated: 05/10/2026 14:52 PT
$389,900
162days on marketSold$389,900 · February 22, 2026
Send a showing request for 144 E H ST, Vernonia, OR, 97064.
Hand-routed to Nate Brantley, Principal Broker & Founder. Same-day reply during business hours.
Sign in once with your email to send this showing request and keep spam out of the lead system.
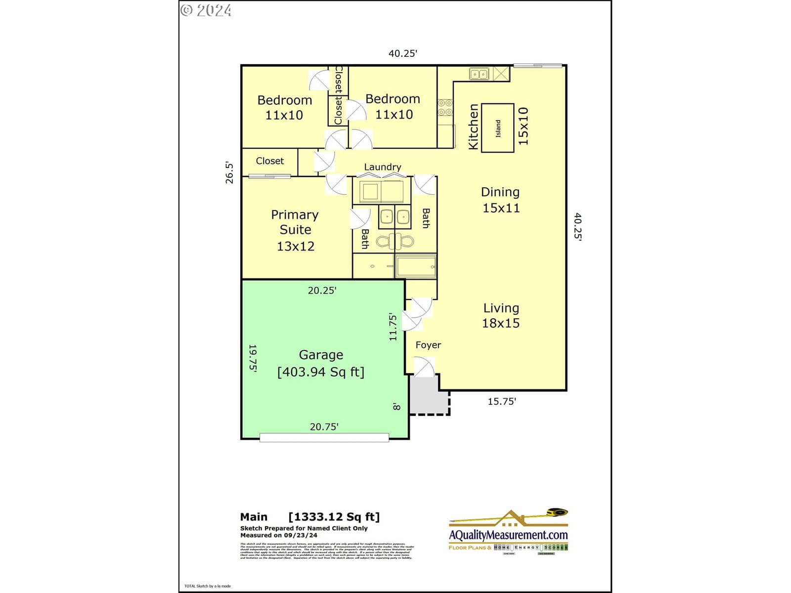
This home sits in Vernonia. The home was built in 2025, set into the rhythm of the neighborhood.
BUILDER SAYS SELL IT!! MOVE IN READY! This stunning new single-level home boasts 3 spacious bedrooms and 2 modern bathrooms, making it the perfect retreat for first-time home buyers. The open great-room layout invites you to entertain and relax, with abundant natural light flowing through large windows. Stylish LVP flooring offers both durability and elegance, while the gourmet kitchen features beautiful quartz countertops, perfect for cooking and gatherings. Step outside to a spacious backyard to play, garden or simply unwind after a long day. Located in a peaceful neighborhood, this home offers a sense of community while being just a short drive from local amenities and outdoor adventures. Don't miss the chance to make this beautiful property your own and enjoy all that Vernonia has to offer! Property taxes TBD. 100% Financing available thru USDA!
Extras & features
Dishwasher, Disposal, Free-Standing Range
Legal description
Legal Desc TBD - Tax Lot 600 City Block 2
Walk Score® data provided by Walk Score