/
$899,000
128days on marketSold$899,000 · March 2, 2026
$899,000
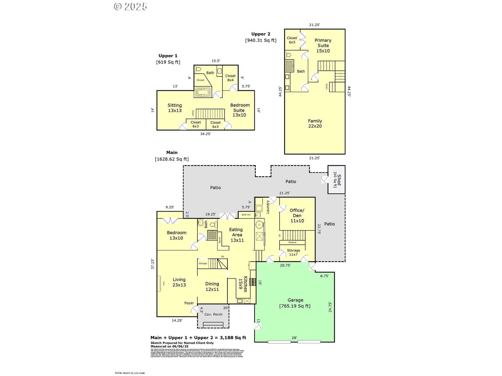
This thoughtfully updated residence presents a highly versatile floor plan with two primary suites and three full bathrooms. The expansive living room features oak floors and a gas fireplace, while the formal dining room offers an elegant setting with a convenient pass-through to the kitchen. The fully remodeled kitchen is appointed with marble tile countertops, a Kitchen Aid gas cooktop, brand-new Frigidaire dishwasher, and a side-by-side refrigerator, complemented by slate flooring. Adjacent is a generous breakfast nook with custom built-in benches and buffet, providing direct access to the heated, covered patio. The main level includes a bedroom and full bath, as well as a dedicated office. One primary suite features a remodeled bathroom with travertine tile, a large bath and spacious walk in shower plus a full size reading room, while the second primary suite offers a full bath suite with double sinks and a spacious, custom walk-in shower. The oversized bonus room easily accommodates a pool table and game-day viewing, complete with wired speaker system. Two new mini-split systems, in addition to central heating, provide efficient year-round climate control, including air conditioning. Outdoor living is enhanced by a custom covered flagstone patio with overhead mounted heaters and hard wired speakers. Set on a private quarter-acre lot, full fenced, with a sprinkler system. Ideally located one block from TriMet with an approximate eight-mile commute to downtown Portland, the property is served by the West Linn School District. A short walk to Robinwood Park and Mary S Young park. A pre-listing inspection has been completed, with recommended repairs already complete.
Extras & features
Oven, Gas Water Heater, Washer, Dryer, Cooktop, Dishwasher, Disposal, Free-Standing Refrigerator, Microwave, Plumbed For Ice Maker, Range Hood
Legal description
1992-93 PARTITION PLAT PARCEL 1
Walk Score® data provided by Walk Score