/
Data Last Updated: 05/10/2026 05:38 PT
$375,000
102days on marketSold$375,000 · February 24, 2026
Send a showing request for 768 NE 70TH AVE, Hillsboro, OR, 97124.
Hand-routed to Nate Brantley, Principal Broker & Founder. Same-day reply during business hours.
Sign in once with your email to send this showing request and keep spam out of the lead system.
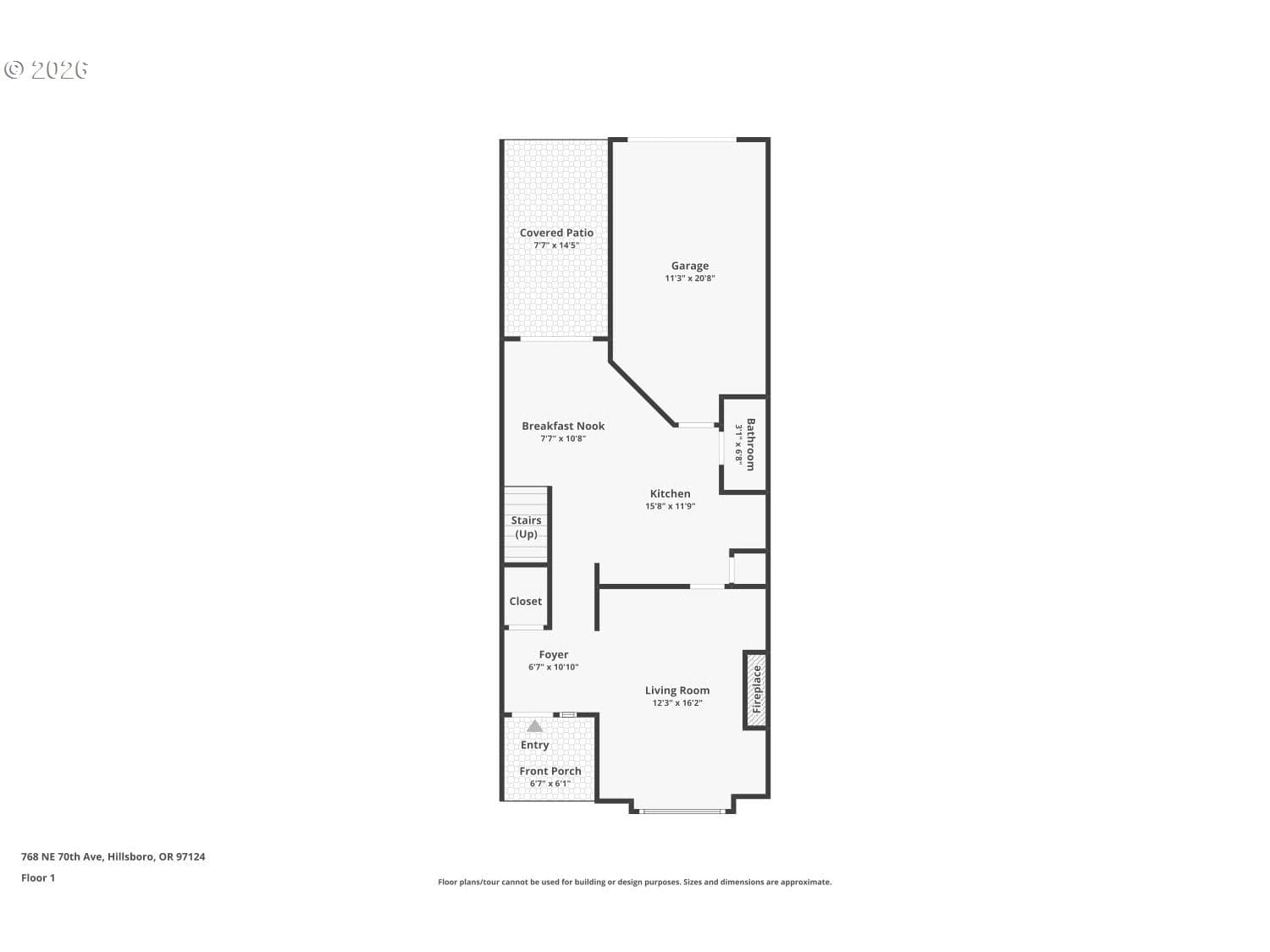
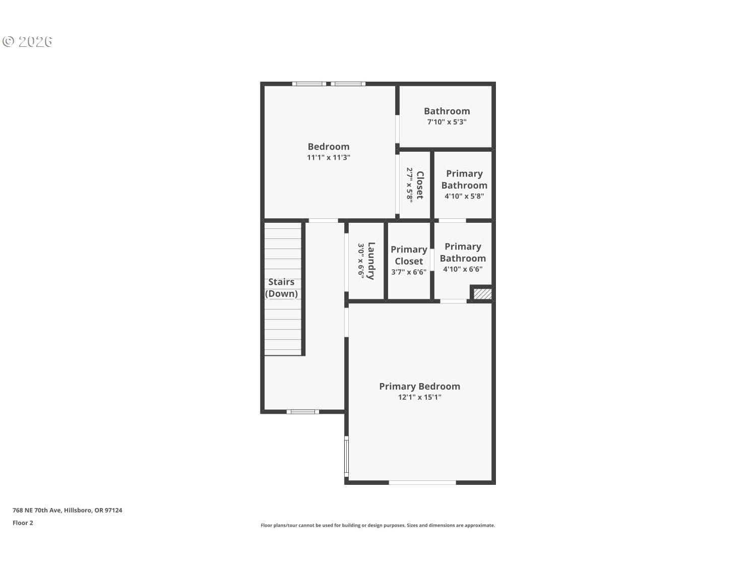
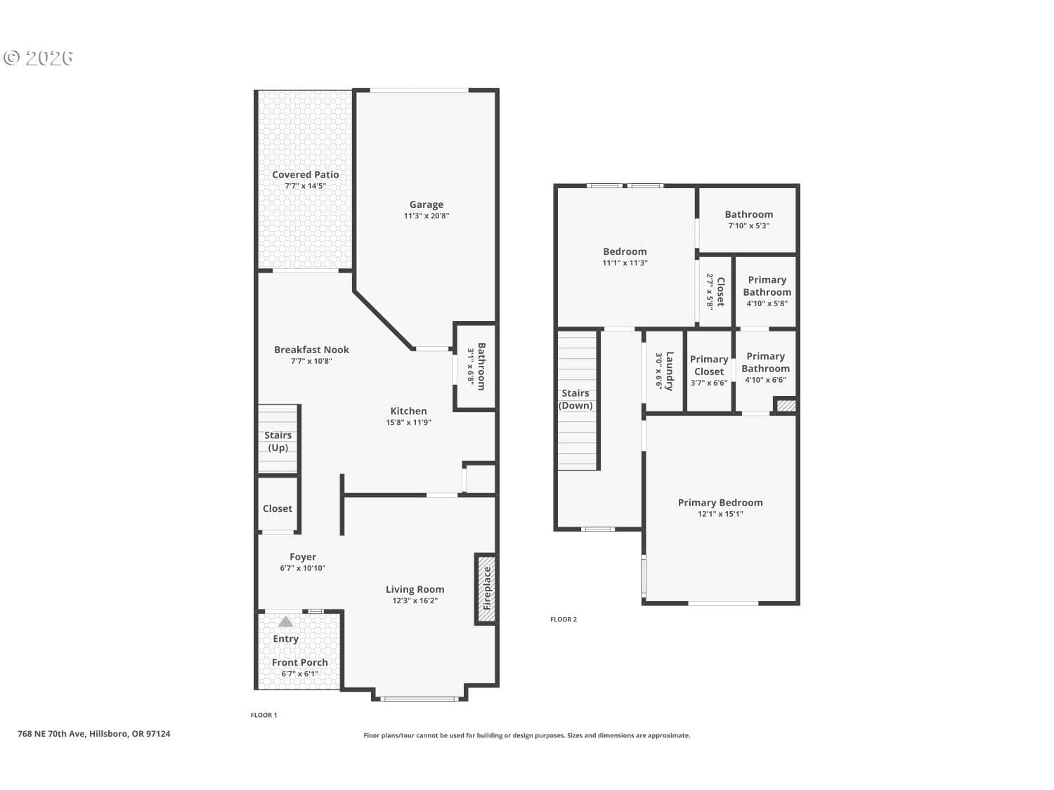
This home sits in Hillsboro. The home was built in 2003, set into the rhythm of the neighborhood.
Welcome home to this beautifully updated townhouse-style attached residence offering comfort, convenience, and true move-in-ready living. This light-filled 2-bedroom, 2.5-bath home features a thoughtful floor plan designed for both everyday living and entertaining. Fresh new carpet and updated flooring create a clean, modern feel throughout, while the warm electric fireplace (plumbed for gas and can be converted) anchors the main living space and adds cozy ambiance year-round.The bright and open layout, with 9 foot ceilings, flows seamlessly into the kitchen and dining areas, making the home feel welcoming and functional. Step outside to your private back deck—an ideal spot for morning coffee, evening relaxation, or summer gatherings. Upstairs, both bedrooms offer generous space, with its each with it's own bathroom for added privacy and comfort.Recent upgrades provide peace of mind and long-term value, including a brand-new roof, updated HVAC system, new air conditioning, and included washer and dryer. The attached one-car garage offers secure parking and additional storage, while the overall design ensures low-maintenance living without sacrificing style or function. Garage attic space is not shared with neighbors and is set up for excellent storage.Perfectly situated for today’s lifestyle, this home boasts excellent walkability and a commuter-friendly location with easy access to major routes and nearby public transit. Whether you’re heading to work, meeting friends, or enjoying nearby amenities, everything you need is close at hand.Warm, bright, and thoughtfully updated, this inviting townhouse delivers the ideal blend of comfort, efficiency, and convenience. Simply unpack and enjoy—this home is truly move-in ready. [Home Energy Score = 8. HES Report at https://rpt.greenbuildingregistry.com/hes/OR10242130]
Extras & features
Gas Water Heater, Dishwasher, Disposal, Free-Standing Gas Range, Free-Standing Refrigerator, Microwave
Legal description
STONEWATER, LOT 39, ACRES 0.03
Building amenities
Walk Score data provided by Walk Score®