/
Data Last Updated: 05/10/2026 05:38 PT
$489,000
87days on marketSold$489,000 · February 17, 2026
Send a showing request for 4104 SE 74TH AVE, Portland, OR, 97206.
Hand-routed to Nate Brantley, Principal Broker & Founder. Same-day reply during business hours.
Sign in once with your email to send this showing request and keep spam out of the lead system.
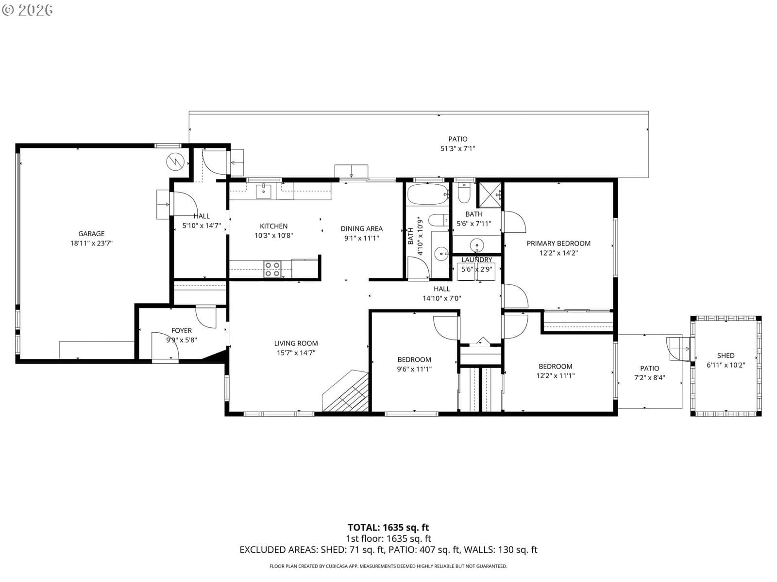
This home sits in Portland. The home was built in 1977, set into the rhythm of the neighborhood.
Located in Foster-Powell and home with was updated in 2020 roof, flooring, paint, electrical panel, kitchen, bathrooms and more. Encompassing 1,204 square feet of living space. This home has 3 beds and 2 baths. 2 car garage attached garage, vinyl windows and fenced yard w/ Garden shed for year round plants or starts for vegetables and plants. Appliances included w/ washer and dryer, additional tool shed.
Extras & features
Washer, Dryer, Built-In Range, Built-In Refrigerator, Dishwasher, Disposal, Microwave
Legal description
AMITY PARK, BLOCK A, LOT 2, LOT 13 EXC E 100'
Walk Score data provided by Walk Score®