/
Data Last Updated: 05/17/2026 12:31 PT
$250,000
325days on marketSold$250,000 · March 4, 2026
Send a tour request for 5581 NE Simpson ST, Portland, OR, 97218.
Hand-routed to Nate Brantley, Principal Broker & Founder. You can expect a same-day reply during business hours.
Your contact details stay private to our team and are only used to coordinate this showing.
Sign in once with your email to send this showing request and keep spam out of the lead system.
We do not post your info publicly or share it outside your showing request.
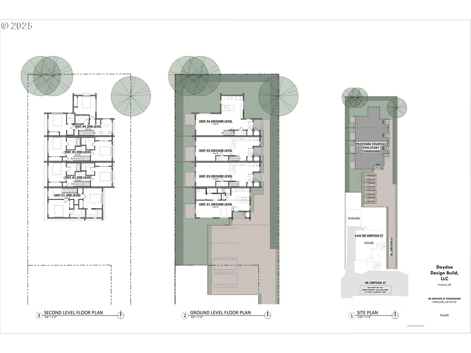
Offer deadline 1/31/2026 @ 5PM. Start building NOW! Don't miss this opportunity to purchase a .20 acre (8500 sqft) lot with FULLY APPROVED PERMITS. LTIC fees have been paid, with no additional right-of-way improvements necessary. Drawing set ready to build 4-townhome, 1100 sq ft units, 2beds, 2.1baths, assigned off-street parking per unit, private patios, & generous fenced yards. Units are eligible for SDC exemption program. This lot is located on a quiet bike street with quick access to parks, PDX airport, Cascade Station, Fremont, Concordia, Kennedy School, grocery stores, breweries, coffee shops, and food carts. Great for commuters with quick access to I-205 and I-84.
Legal description
Partition Plat 2024-56, Lot 2
Walk Score data provided by Walk Score®