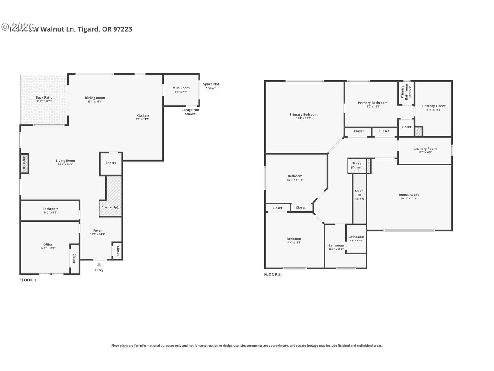
14044 SW WALNUT LN, Tigard, OR, 97223 | Brantley Christianson Real Estate | Brantley Christianson Real Estate