/
Data Last Updated: 05/03/2026 08:17 PT
$739,000
103days on marketSold$785,000 · January 26, 2026
Send a showing request for 4613 SE 49TH AVE, Portland, OR, 97206.
Hand-routed to Nate Brantley, Principal Broker & Founder. Same-day reply during business hours.
Sign in once with your email to send this showing request and keep spam out of the lead system.
Set in WOODSTOCK, this home sits in Portland. The home was built in 2009, set into the rhythm of the neighborhood.
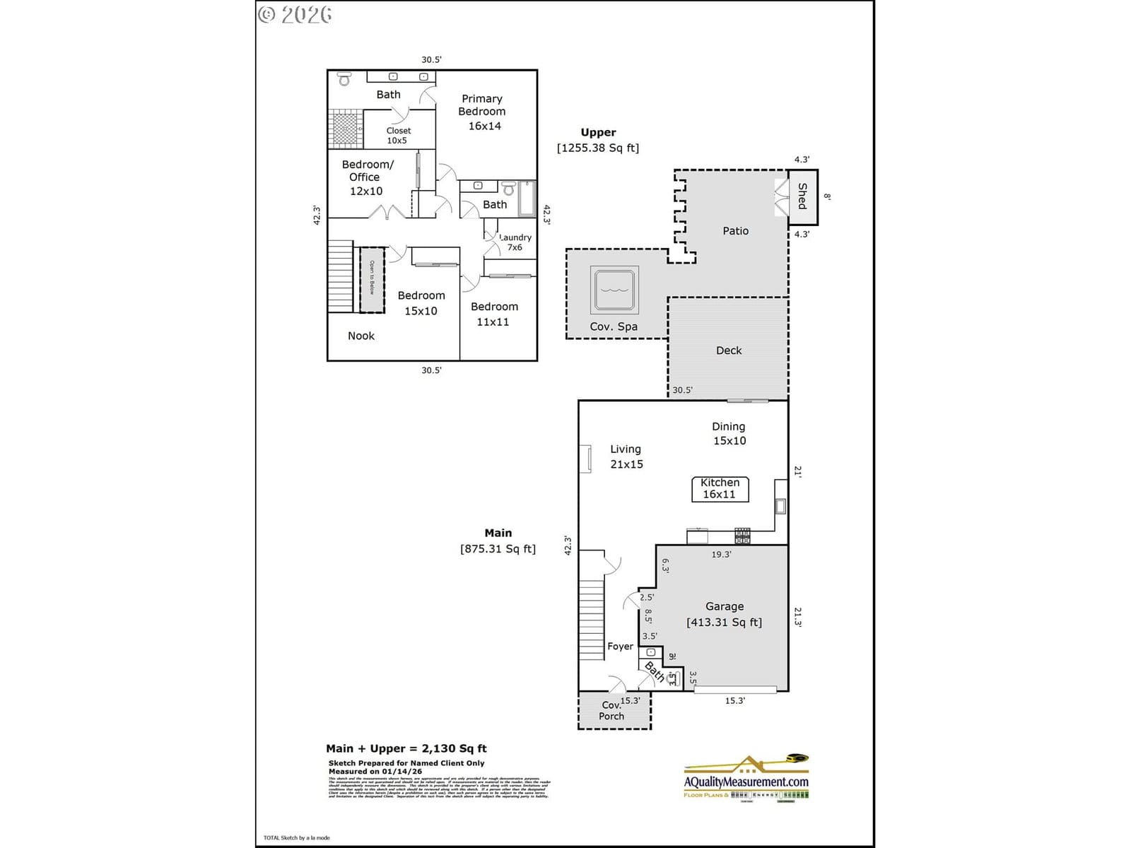
Newer 2009 Craftsman in the heart of Woodstock with modern systems and an easy, livable layout! Covered front porch opens to a great-room main level with hardwood floors, recessed lighting, and a gas fireplace. Open kitchen features granite counters, stainless appliances, built-in hutch, and an island with breakfast bar seating. Dining area slider to the deck for effortless indoor/outdoor entertaining, plus a convenient half bath. Upstairs: spacious primary suite with walk-in closet (built-ins), double vanity, and tiled walk-in shower, plus 3 additional bedrooms, including one with glass French doors, perfect for an office/den or private bedroom. Full hall bath + upstairs laundry. Fully fenced yard with Pistils-designed landscaping, deck + patio, newer covered hot tub, tool shed, and 1-car garage with workshop space. Minutes to Woodstock shops and restaurants! [Home Energy Score = 5. HES Report at https://rpt.greenbuildingregistry.com/hes/OR10243732]
Extras & features
Gas Water Heater, Dishwasher, Disposal, Free-Standing Gas Range, Free-Standing Refrigerator, Microwave
Legal description
BROCKTON, BLOCK 4, N 40' OF LOT 9
Walk Score data provided by Walk Score®