/
Data Last Updated: 05/17/2026 16:02 PT
$445,000
61days on marketSold$462,800 · March 23, 2026
Send a tour request for 585 E 36TH AVE, Eugene, OR, 97405.
Hand-routed to Nate Brantley, Principal Broker & Founder. You can expect a same-day reply during business hours.
Your contact details stay private to our team and are only used to coordinate this showing.
Sign in once with your email to send this showing request and keep spam out of the lead system.
We do not post your info publicly or share it outside your showing request.
This home sits in Eugene. The home was built in 1959, set into the rhythm of the neighborhood.
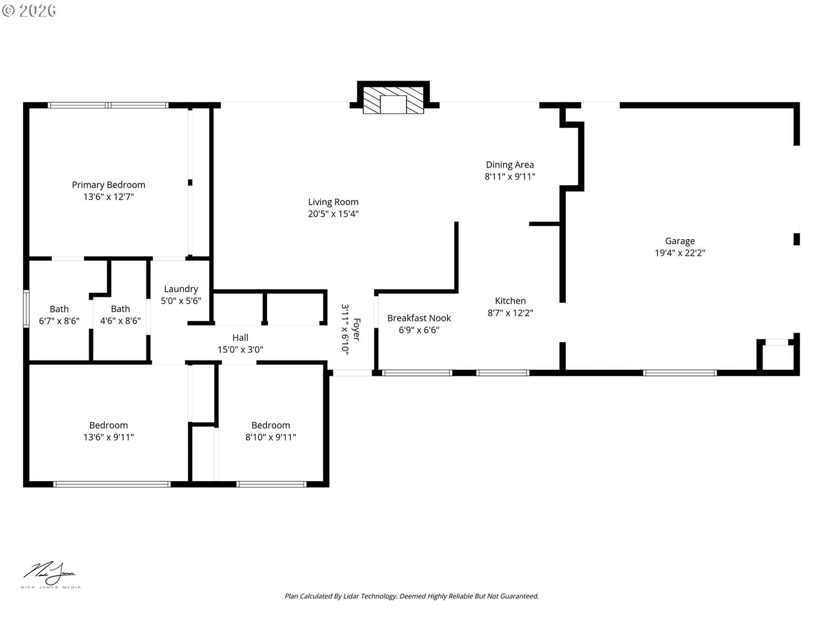
Location Location! This midcentury ranch filled with natural light is situated for privacy on nearly a quarter acre with excellent southern exposure- a gardeners dream. The home feels larger than it is with nature views from every widow. Awesome view of Spencers Butte from kitchen and entry and across the street from the woodsy side entrance to Tugman Park. Large sliding glass doors on either side of the brick fireplace open onto an expansive patio and create a wall of windows in the living and dining room. Close to South Eugene restaurants, shopping, UO and LCC. Recent upgrades include a newer roof & exterior paint, new supply water from street in 2022, new heat pump and gas furnace in 2022, kitchen updated in 2025- original cabinets were re-finshed, new sink, quartz countertops, subway tile backsplash & Cafe stainless steel gas range. There are cosmetic updates still to do and the home has been priced accordingly- come add the finishing touches on this one to make it sparkle! Room measurements are approximate- buyer to verify. OPEN HOUSE SAT & SUN MARCH 21ST & 22ND FROM 11AM-1PM
Extras & features
Washer, Dryer, Built-In Range, Dishwasher, Free-Standing Refrigerator, Range Hood
Legal description
18-03-08-32-08100
Walk Score data provided by Walk Score®