/
Data Last Updated: 05/17/2026 15:56 PT
$749,900
60days on marketSold$730,000 · March 27, 2026
Send a tour request for 7833 SW LARCH ST, Portland, OR, 97223.
Hand-routed to Nate Brantley, Principal Broker & Founder. You can expect a same-day reply during business hours.
Your contact details stay private to our team and are only used to coordinate this showing.
Sign in once with your email to send this showing request and keep spam out of the lead system.
We do not post your info publicly or share it outside your showing request.
This home sits in Portland. The home was built in 2004, set into the rhythm of the neighborhood.
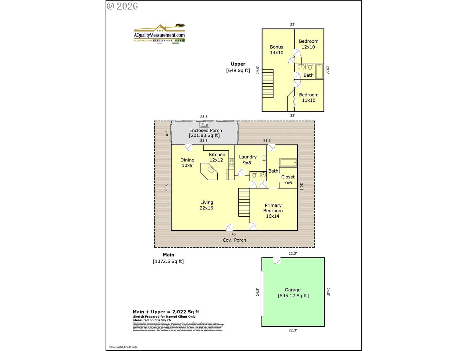
Set back off the street on just under a half acre, this custom-built log cabin feels like you are entering your own world while still living in the city. Built in 2004 from hand-scribed Douglas fir log rounds, the home is full of warmth and character while still being modern and functional. The primary suite is located on the main floor, and the sunroom, with its own wood stove, looks out over the front yard and is perfect for early morning coffee and evening conversations. The loft space works well for reading, relaxing, or as a home office. Nearly 1,200 square feet of covered porches wrap the home. The property includes a large detached two-car garage, walk-in basement storage, and mature landscaping that adds to the sense of privacy. It’s a one-of-a-kind home that offers the charm of a true log cabin while still being modern and livable. Washington County taxes.
Extras & features
Washer, Dryer, Dishwasher, Disposal, Free-Standing Gas Range, Free-Standing Refrigerator, Range Hood
Legal description
METZGER ACRE TRACTS, BLOCK 18, LOT PT 5, ACRES 0.44
Walk Score data provided by Walk Score®