/
Data Last Updated: 05/27/2026 19:02 PT
$960,000
43days on marketSend a tour request for 5813 NE 111TH CIR, Vancouver, WA, 98686.
Hand-routed to Nate Brantley, Principal Broker & Founder. You can expect a same-day reply during business hours.
Your contact details stay private to our team and are only used to coordinate this showing.
Sign in once with your email to send this showing request and keep spam out of the lead system.
We do not post your info publicly or share it outside your showing request.
This home sits in Vancouver. The home was built in 2026, set into the rhythm of the neighborhood.
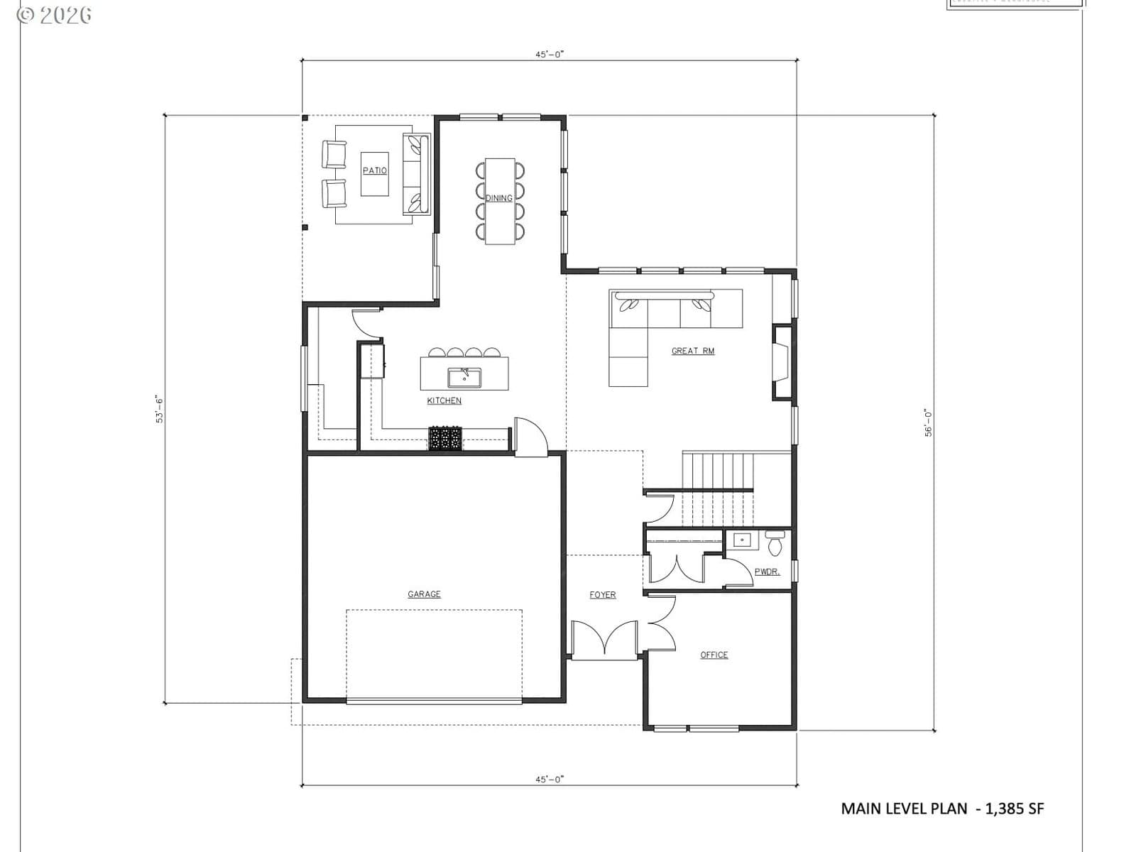
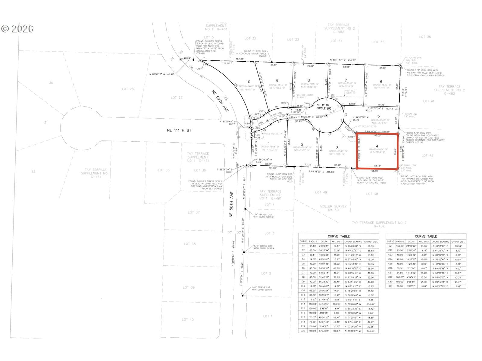
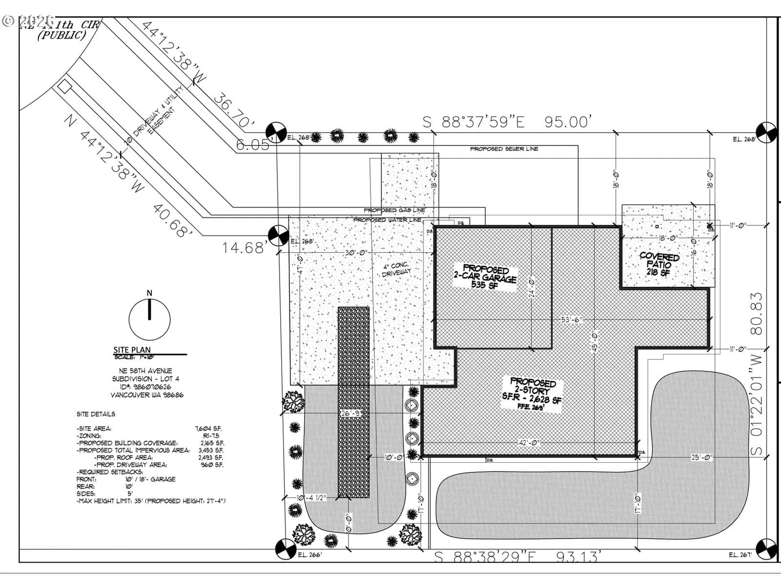
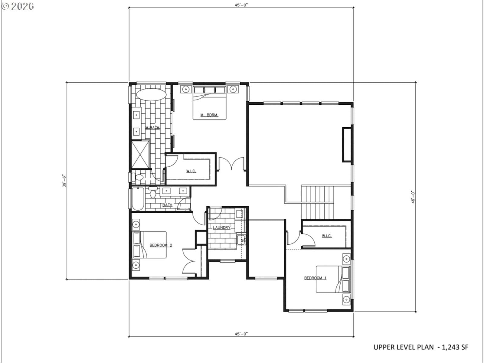
Architectural Masterpiece: Modern Luxury in a New Subdivision. Experience the pinnacle of contemporary living in this stunning, to-be-built masterpiece. Tucked away on a private, expansive flag lot, this home offers the perfect balance of seclusion and sophisticated design. The dramatic double-height great room serves as the heart of the residence, featuring floor-to-ceiling windows that bathe the interior in natural light and perfectly frame the surrounding scenery. This 3-bedroom, 2.5-bath home features a laundry room upstairs and an office/den by the foyer that is two stories high. Designed for the entertainer, the open-concept gourmet kitchen with professional-grade appliances seamlessly integrates with the soaring living space. Outside, the property will feature a covered patio, fenced backyard, and small RV/trailer parking. See attached plans for site plan layout. Estimated completion: Autumn 2026. Still time to come and pick your colors and finishing touches.
Extras & features
Dishwasher, Disposal, Free-Standing Range, Free-Standing Refrigerator, Microwave
Legal description
NE 58TH AVENUE LOT 4 312363 FOR ASSESSOR USE ONLY NE 58TH AVENUE
Walk Score data provided by Walk Score®