/
Data Last Updated: 05/30/2026 20:43 PT
$349,900
227days on marketSold$349,900 · February 22, 2026
Send a tour request for 3317 SW 209th AVE, Hillsboro, OR, 97123.
Hand-routed to Nate Brantley, Principal Broker & Founder. You can expect a same-day reply during business hours.
Your contact details stay private to our team and are only used to coordinate this showing.
Sign in once with your email to send this showing request and keep spam out of the lead system.
We do not post your info publicly or share it outside your showing request.
Set in REED'S CROSSING, this home sits in Hillsboro. The home was built in 2026, set into the rhythm of the neighborhood.
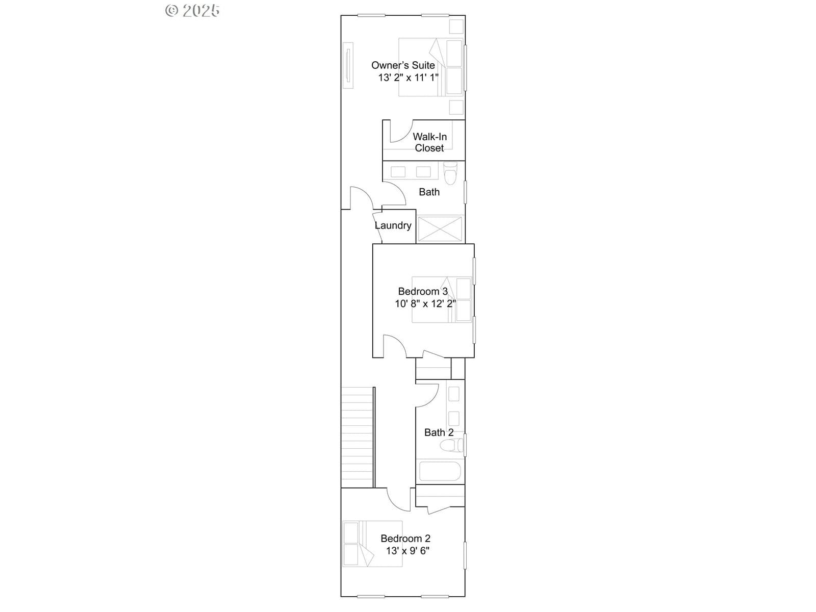
This new construction home by Lennar is located in Reed's Crossing, a new vibrant community only minutes from major employers with more than 36 acres of open spaces connected by paths, a Town Center featuring shopping and dining, and access to highly rated schools. The 3 bedroom, 2.5 bathroom Dallas plan offers a spacious two-story layout with an open-concept kitchen, dining area, and living room on the first floor, along with a covered patio ideal for outdoor relaxation. Upstairs are three bedrooms, including the well-appointed primary suite, which features a walk-in closet and an en-suite private bath with a double vanity. Interior highlights include quartz countertops, Shaker-style cabinets, LVP flooring in the kitchen and entry, LVT in the bathrooms, and two-tone interior paint. This home also includes central air conditioning, a refrigerator, washer and dryer, and blinds—all at no extra cost! Rendering is artist conception only. Photos are of a similar home, features and finishes will vary. Move-in ready. Homesite 1635. Below-market rate incentives available when financing with preferred lender! [Home Energy Score = 10. HES Report at https://rpt.greenbuildingregistry.com/hes/OR10243332]
Extras & features
Gas Water Heater, Washer, Dryer, Dishwasher, Disposal, Free-Standing Gas Range, Free-Standing Refrigerator, Microwave
Legal description
Reeds Crossing, Lot 1635
Building amenities
Walk Score® data provided by Walk Score