/
Data Last Updated: 05/10/2026 03:47 PT
$630,000
88days on marketSold$639,650 · February 19, 2026
Send a showing request for 1952 SILVERSTONE DR, Forest Grove, OR, 97116.
Hand-routed to Nate Brantley, Principal Broker & Founder. Same-day reply during business hours.
Sign in once with your email to send this showing request and keep spam out of the lead system.
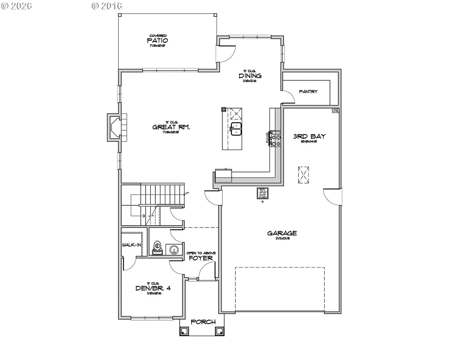
Set in SILVERSTONE PHASE I, this home sits in Forest Grove. The home was built in 2016, set into the rhythm of the neighborhood.
This stunning home, formerly the model home for the community features spacious and inviting living areas. Nestled on a lot that backs to peaceful greenspace, enjoy your private, fully fenced backyard perfect for outdoor living and entertaining. Step inside to discover a spacious layout featuring hardwoods through the main level living areas. The kitchen is a chef’s dream with quartz counters, tile backsplash, maple shaker cabinetry and stainless-steel appliances including a Whirlpool gas cooktop, wall oven, built-in microwave and Zephyr hood vent. The massive walk-in pantry provides exceptional storage and the open plan flows seamlessly into the living room. Additional highlights include a main floor den ideal for a home office or study, a 10 x 17 covered patio perfect for outdoor gatherings, 2 car garage + workshop or hobby space, an upstairs bonus/media room 21 x 12 perfect for movie nights or a playroom. The master suite features a custom accent wall, large windows, dual sinks, soaking tub, walk-in tile shower, tile flooring and oversized walk-in closet. The laundry room features tile counters, sink, cabinets and included washer/dryer. Modern conveniences include air conditioning, smart home features (Ring doorbell, Nest thermostat, smart front door lock), tankless water heater, and all blinds stay. Backyard is fully fenced and features a retaining wall and French drain system. HOA dues of $69/month cover front yard landscaping. Located in a quiet neighborhood, just minutes from downtown Forest Grove, this home combines privacy, comfort and convenience. Call today for your private showing!
Extras & features
Oven, Gas Water Heater, Washer, Dryer, Cooktop, Dishwasher, Disposal, Microwave
Legal description
SILVERSTONE, LOT 36, ACRES 0.10
Building amenities
Walk Score data provided by Walk Score®