/
Data Last Updated: 05/10/2026 03:47 PT
$749,900
59days on marketSold$750,000 · March 18, 2026
Send a showing request for 7920 SW 82nd AVE, Portland, OR, 97223.
Hand-routed to Nate Brantley, Principal Broker & Founder. Same-day reply during business hours.
Sign in once with your email to send this showing request and keep spam out of the lead system.
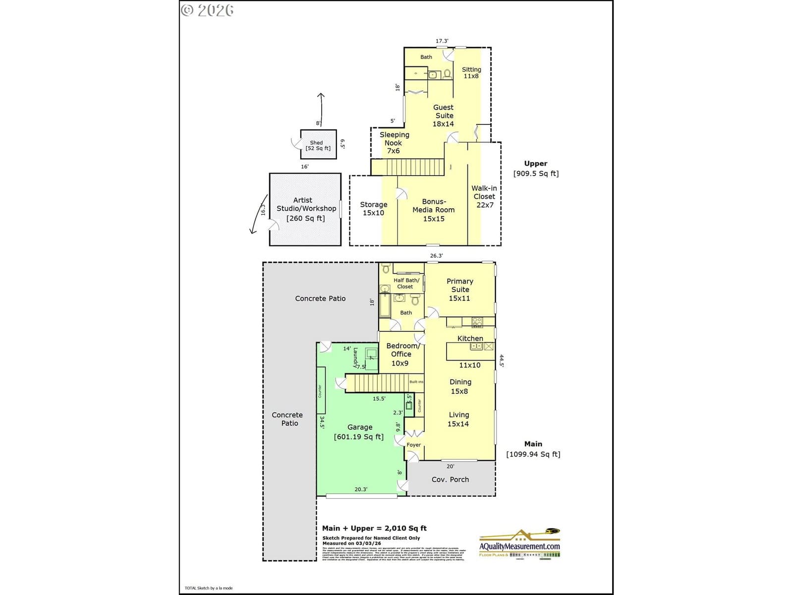
Set in Garden Home, this home sits in Portland. The home was built in 1985, set into the rhythm of the neighborhood.
Fabulous NW Contemporary with main-floor living and attached but private guest suite up. Perfect for health care provider, potential vacation rental income, or your mother-in-law. PLUS detached studio / workspace (not incl. in sf). Bonuses include: Solar panels, 2 x 12kw Tesla Powerwalls, Hardieplank siding, new electric panel (2021), updated kitchen, Rinnai Tankless water heater, immaculate wood floors, and 5 x Daikin Mini-Spits for efficient heating and cooling comfort all-year-long. Turn-key clean and move-in ready. With GH Park, Trader Joe's and Starbucks right here, this home is just right for first-time-buyers, down-sizers and investors alike. OPEN Tuesday 3/17, 11:00 am - 2:00 pm.
Extras & features
Gas Water Heater, Washer, Dryer, Dishwasher, Disposal, Free-Standing Range, Free-Standing Refrigerator, Induction Cooktop, Microwave, Range Hood, Water Purifier
Legal description
BROWNMEADE, LOT PT 5, ACRES 0.41
Walk Score data provided by Walk Score®