/
Data Last Updated: 05/17/2026 12:31 PT
$1,515,000
95days on marketSold$1,500,000 · April 1, 2026
Send a tour request for 990 LUND ST, Lake Oswego, OR, 97034.
Hand-routed to Nate Brantley, Principal Broker & Founder. You can expect a same-day reply during business hours.
Your contact details stay private to our team and are only used to coordinate this showing.
Sign in once with your email to send this showing request and keep spam out of the lead system.
We do not post your info publicly or share it outside your showing request.
This home sits in Lake Oswego. The home was built in 2025, set into the rhythm of the neighborhood.
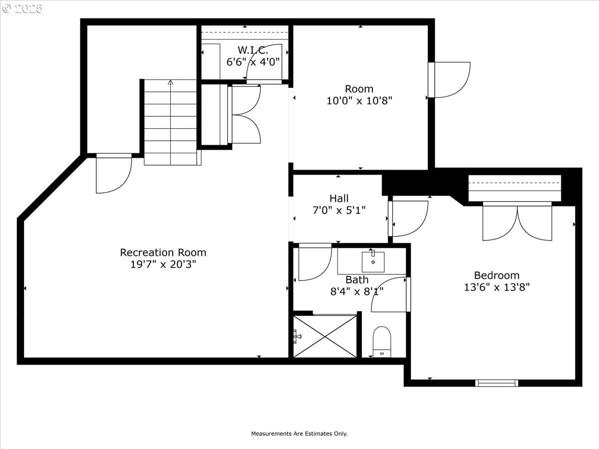
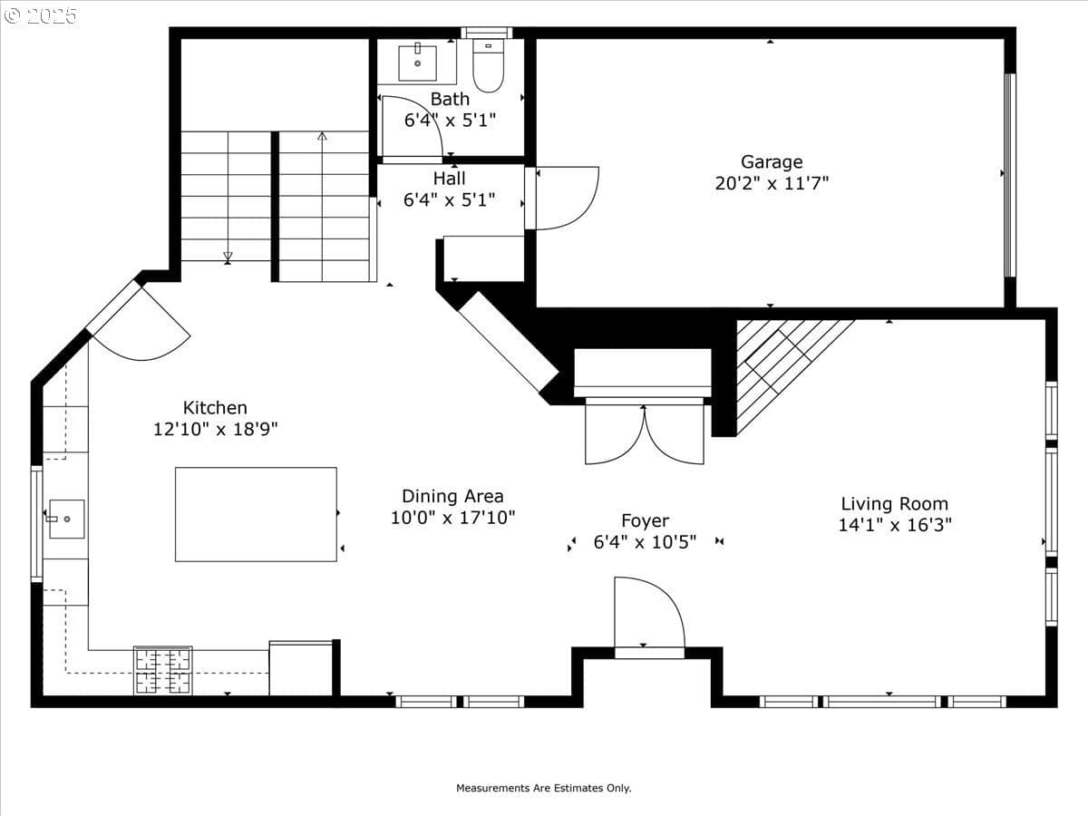
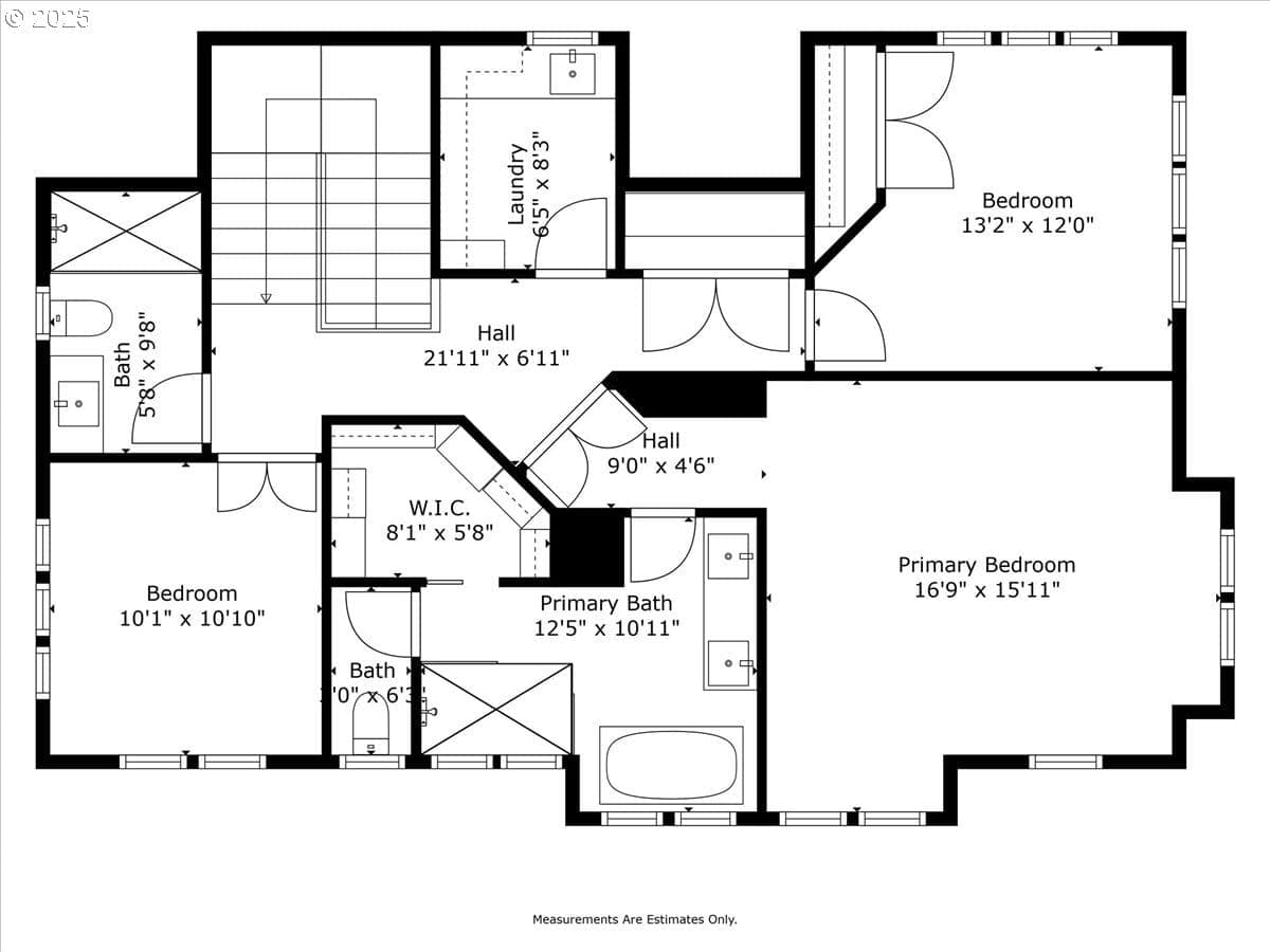
*Special financing available! Jumbo Loan options with a complimentary lender credit toward your rate buy down or closing costs when financed with preferred lender Troy Pohrman at Guild Mortgage*Hallinan has another Monogrammed home! Situated on a premiere lot, this contemporary home offers everything you would expect from a Monogram build including a custom steel pivot front door, smooth interior walls, and back yard covered patio with heater. Super functional floor plan with 2 bedrooms up, and another with full bath on the lower level. Greatroom opens to a lux kitchen with Wolf and Subzero appliances. Divine primary suite with free standing tub and large tiled shower. Monogrammed to perfection, buyers will love all the features this new build has to offer. Convenient location . Stroll to downtown Lake Oswegos restaurants, farmers market and wonderful amenities.
Extras & features
Gas Water Heater, Dishwasher, Disposal, Free-Standing Gas Range, Free-Standing Refrigerator, Microwave, Range Hood
Legal description
79 SOUTH OSWEGO PT LTS 5 & 6 BLK 31
Walk Score data provided by Walk Score®