/
Data Last Updated: 05/08/2026 21:07 PT
$444,480
418days on marketSold$444,000 · February 13, 2026
Send a showing request for 1449 SE Hankel ST, Dallas, OR, 97338.
Hand-routed to Nate Brantley, Principal Broker & Founder. Same-day reply during business hours.
Sign in once with your email to send this showing request and keep spam out of the lead system.
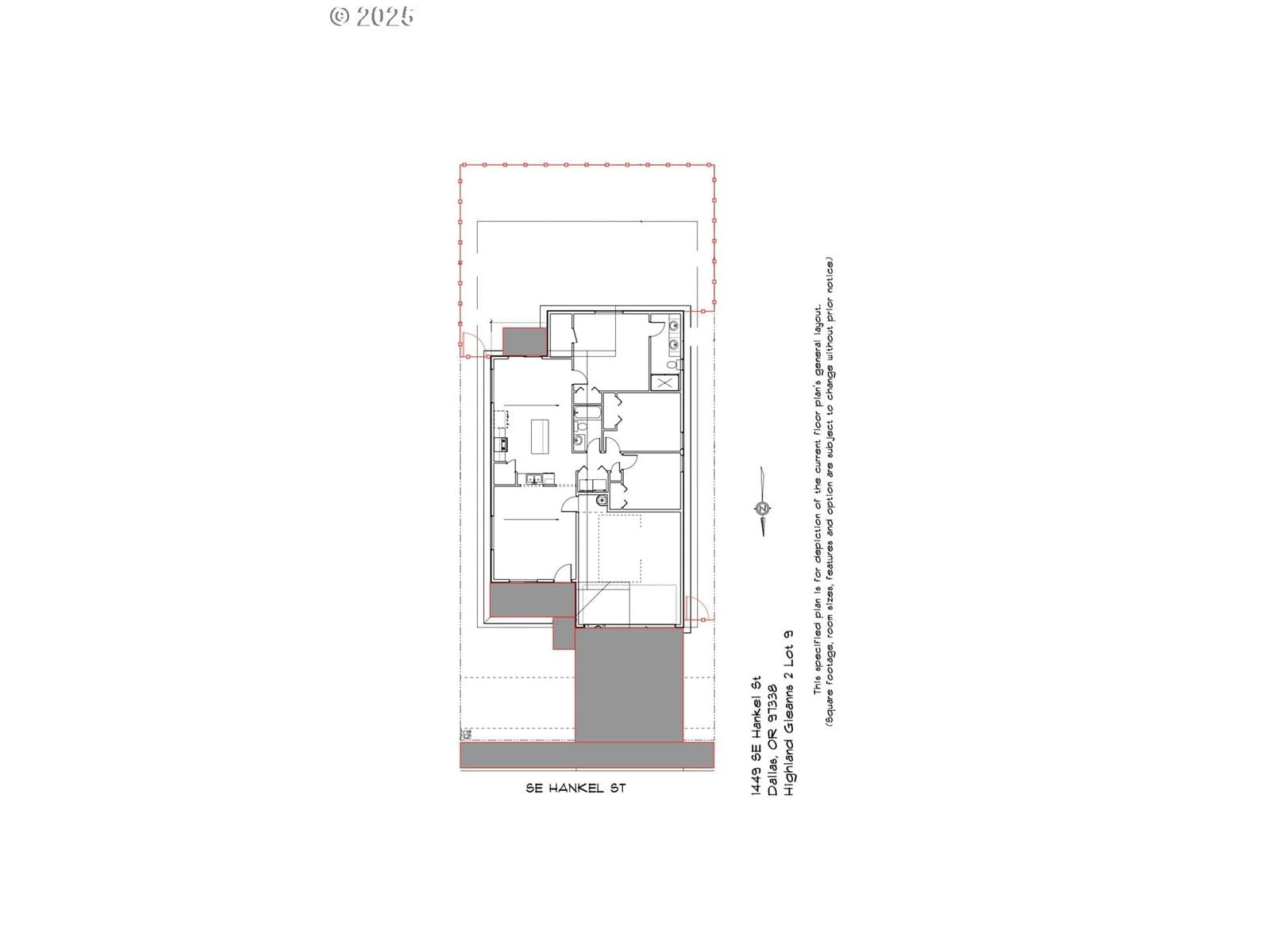
Set in HIGHLAND GLEANNS 2, this home sits in Dallas. The home was built in 2025, set into the rhythm of the neighborhood.
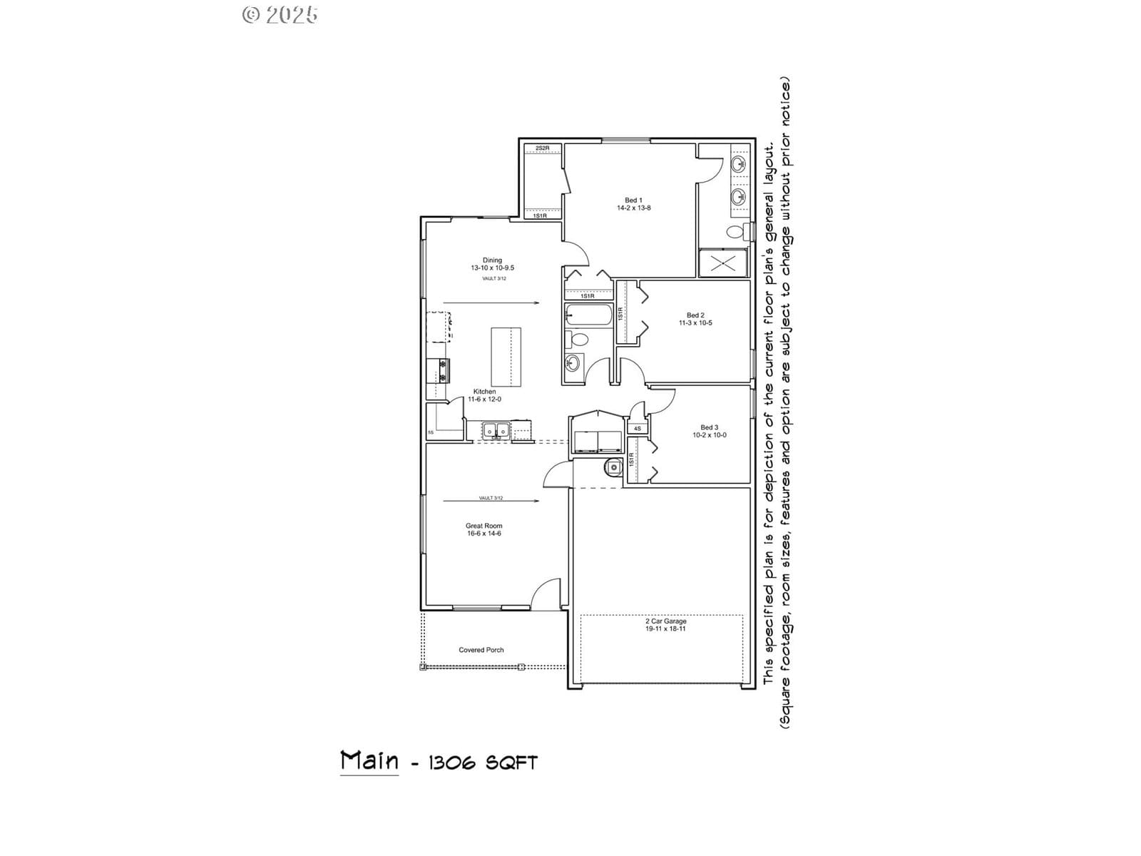
This 1,306 sq. ft. single-level 3-bed, 2-bath home offers a vaulted great room and dining area, island kitchen with shaker cabinets, granite counters, LVP flooring, SS gas range, and corner pantry. Pass-through to great room adds convenience. Primary suite features double vanity, walk-in closet, and extra closet. Fenced & landscaped backyard, A/C included. LA related to seller. Completed construction.
Extras & features
Gas Water Heater, Dishwasher, Disposal, ENERGY STAR Qualified Appliances, Free-Standing Gas Range, Microwave, Plumbed For Ice Maker
Legal description
Highland Gleanns 2
Walk Score data provided by Walk Score®