/
$515,000
95days on marketSold$515,000 · January 11, 2026
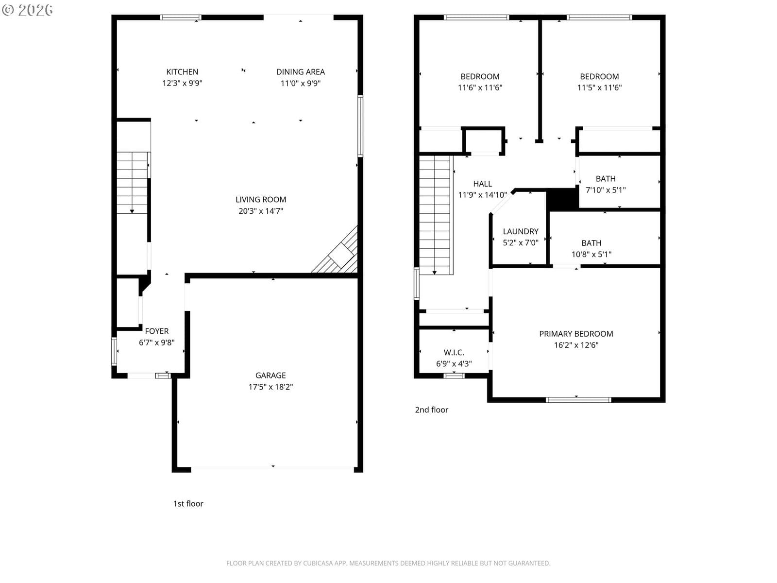
Location, Location! Welcome to this charming two story home in a quite cul-de-sac neighborhood in Camas WA The home boasts 3 bd 2.5 baths. Stainless steel appliances, electric cooktop. Wainscoting adds a classic timeless look in the lower floor along with laminate flooring through out the whole home (no carpet) Open concept with an inviting fireplace to cozy up to. Enjoy the backyard with a deck to BBQ and a fenced yard. Washer & Dryer and Fridge all stay! This neighborhood comes with great amenities, indoor Pickleball courts nearby, Golds gym, Sports park, 5.5 acre park on a lake with picnic tables and playground, watersports and hiking trails, biking etc. Enjoy the quaint downtown Camas with Festivals, shopping and dining In the highly rated Camas School District, providing top notch education. ....Make a great rental NO HOA's! New Exterior and Interior paint was done last week.
Extras & features
Oven, Gas Water Heater, Washer, Dryer, Dishwasher, Disposal, Free-Standing Refrigerator
Legal description
THE MEADOWS PHASE 1 LOT 46 SUB 2000 FOR ASSESSOR USE ONLY THE MEA
$515,000
Walk Score data provided by Walk Score®