/
Data Last Updated: 05/30/2026 15:07 PT
$299,900
47days on marketSend a tour request for 6211 SE POLARIS WAY, Hillsboro, OR, 97123.
Hand-routed to Nate Brantley, Principal Broker & Founder. You can expect a same-day reply during business hours.
Your contact details stay private to our team and are only used to coordinate this showing.
Sign in once with your email to send this showing request and keep spam out of the lead system.
We do not post your info publicly or share it outside your showing request.
This home sits in Hillsboro. The home was built in 1997, set into the rhythm of the neighborhood.
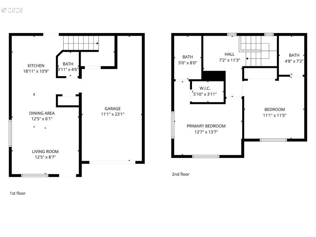
Two-story living at Moorcroft Condos. This 2-bedroom, 2.5-bath home has been thoughtfully updated, featuring new flooring and a new range, along with recent community-wide improvements including a newer roof, fiber cement siding, exterior paint, energy-efficient windows and upgraded insulation. Additional updates include newly painted cabinets (2023), adding to the home’s overall appeal. Each bedroom features its own private bathroom, offering added comfort and convenience. Situated on a desirable corner lot, the home includes a one-car garage for parking, plus a separate area with a washer and dryer that also provides extra storage space. HOA dues cover water, sewer, garbage, exterior maintenance, and landscaping—offering easy, low-maintenance living. Ideally situated in a quiet, well-maintained Hillsboro community, this home offers a peaceful setting with convenient access to Reed’s Crossing, nearby shopping, dining, and Century High School.
Extras & features
Gas Water Heater, Washer, Dryer, Dishwasher, Disposal, Free-Standing Range, Free-Standing Refrigerator, Microwave
Legal description
MOORCROFT STATION CONDO STAGE 4, LOT 58
Building amenities
$299,900
13850 SW Scholls Ferry RdBeaverton, OR 97007
Status: EXP
2 beds · 3 baths · 1,068 SQFT
$300,000
13810 SW Scholls Ferry RdBeaverton, OR 97007
Status: EXP
2 beds · 3 baths · 1,059 SQFT
Walk Score® data provided by Walk Score