/
$374,900
81days on marketSold$374,900 · February 11, 2026
$374,900
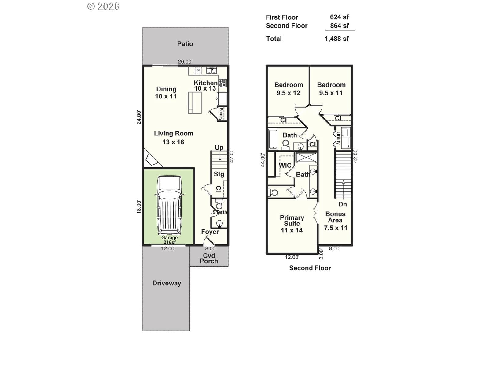
*OPEN SUNDAY 2/8 FROM 11-1 PM* Welcome home! Gorgeous end-unit townhouse in Arbor Vineyards, tucked beside peaceful (HOA owned) greenspace on a quiet non-through street—with a brand-new roof & upgraded to a tankless water heater! A charming covered porch leads into a bright main level with engineered hardwood floors, powder room, and direct access to a clean attached one-car garage with under-stair storage. The open-concept great room features a cozy corner fireplace and flows effortlessly into a well-appointed kitchen with island, stainless steel appliances, pantry, and dining nook with slider to a fenced patio and yard—perfect for relaxing or entertaining. A gate in the fence leads to a common area that provides a nice buffer from neighbors. Upstairs, fully carpeted, a versatile loft opens to a spacious primary suite with French doors, vaulted ceiling, ensuite bath, and walk-in closet, plus two additional bedrooms, hall bath, and convenient laundry. Enjoy easy access to Arbor Vineyards park, playground, nature area, shopping, dining, and trails—don’t miss this one!
Extras & features
Washer, Dryer, Cooktop, Dishwasher, Disposal, Free-Standing Range, Free-Standing Refrigerator, Microwave, Plumbed For Ice Maker
Legal description
ARBOR OAKS NO.2, LOT 188, ACRES 0.04
Building amenities
Walk Score data provided by Walk Score®