/
$425,000
75days on marketSold$460,000 · February 9, 2026
$425,000
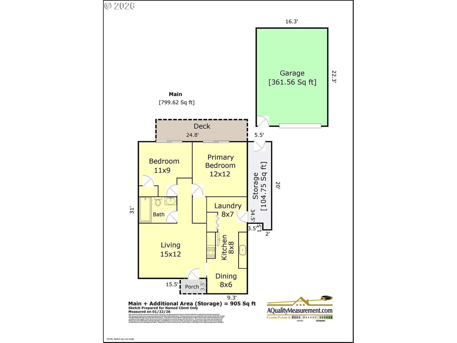
This 1951 mid-century gem puts you within minutes of Cathedral Park's iconic suspension bridge and the vibrant energy of downtown St Johns. Moody lighting and thoughtful updates set a relaxed, modern tone in this efficient 2 bed, 1 bath home. The remodeled eat-in kitchen with quartz counters flows to bonus storage and pantry space. Sliders in both bedrooms open to a deck overlooking the landscaped, fenced backyard. Newer HVAC, AC and brand new windows will keep you comfortable year-round. The oversized detached garage is ready for your bikes, kayaks, and weekend gear. Bar Nouveau, St John’s Twin Cinemas, The Sparrow Bakery, Gracie’s Apizza, and Lombard house await their new resident regulars! [Home Energy Score = 5. HES Report at https://rpt.greenbuildingregistry.com/hes/OR10012993]
Extras & features
Dishwasher, Disposal, Free-Standing Gas Range, Free-Standing Range, Free-Standing Refrigerator, Microwave, Plumbed For Ice Maker
Legal description
A L MINERS ADD, BLOCK 24, LOT 3&4
Walk Score data provided by Walk Score®