/
Data Last Updated: 05/17/2026 16:02 PT
$474,900
188days on marketSold$474,900 · March 15, 2026
Send a tour request for 2642 Mt. Saint Helens AVE SE, Salem, OR, 97302.
Hand-routed to Nate Brantley, Principal Broker & Founder. You can expect a same-day reply during business hours.
Your contact details stay private to our team and are only used to coordinate this showing.
Sign in once with your email to send this showing request and keep spam out of the lead system.
We do not post your info publicly or share it outside your showing request.
Set in Coburn Terrace, this home sits in Salem. The home was built in 2026, set into the rhythm of the neighborhood.
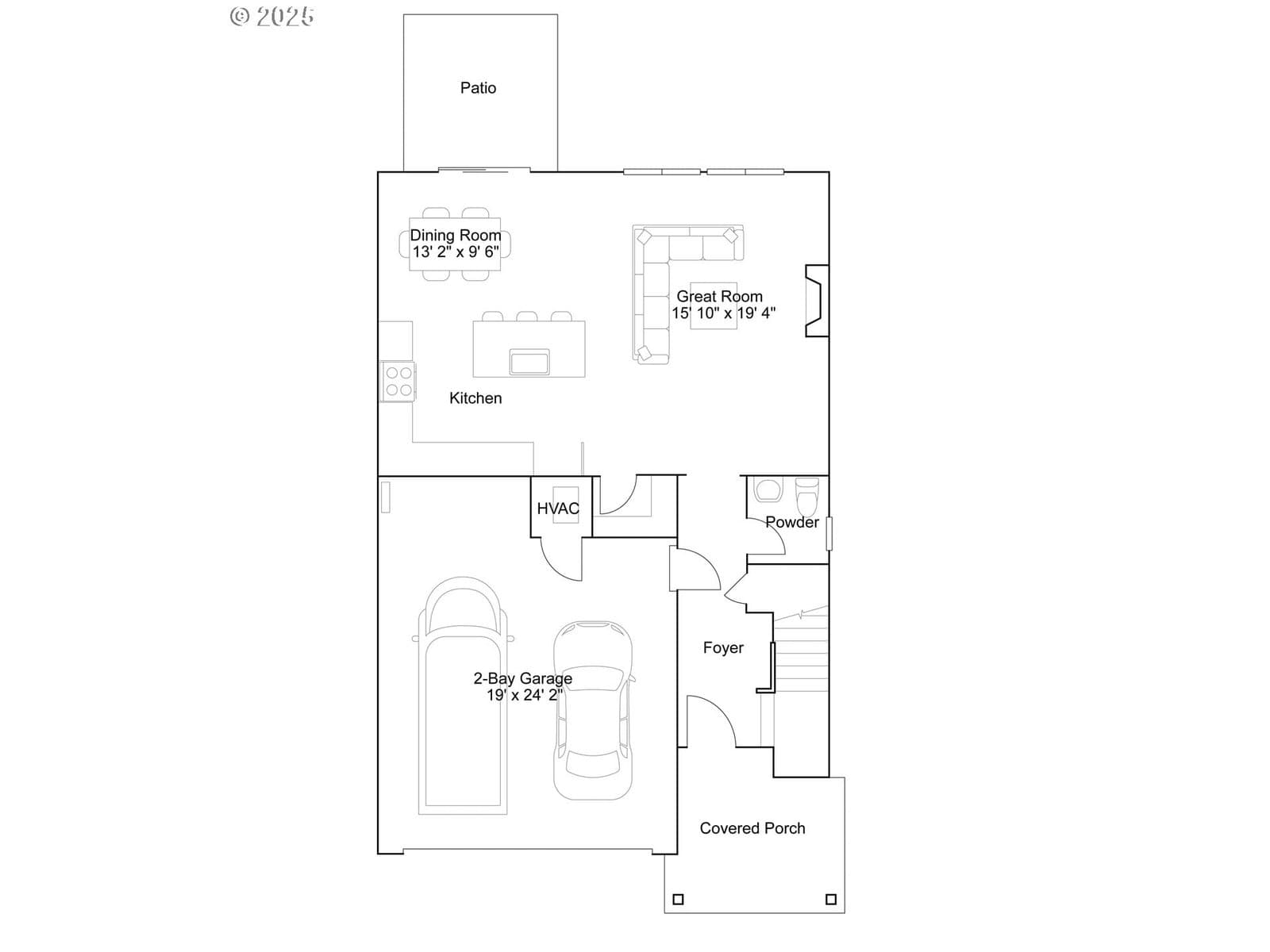
Welcome to Coburn Terrace by Lennar located in Salem. This new construction Cypress plan offers a well-balanced layout with a spacious great room, dining area, and kitchen that flow together for easy entertaining, opening to a back patio for outdoor enjoyment. A cozy fireplace adds warmth to the main living area, while upstairs features three bedrooms surrounding a versatile bonus room. The primary suite showcases a spa-inspired en-suite bath with dual vanities, a separate soaking tub, a walk-in shower, and a spacious walk-in closet. Interior highlights include quartz countertops, Shaker-style cabinets, LVP (luxury vinyl plank) flooring in the kitchen and entryway, LVT (luxury vinyl tile) in the baths, two-tone interior paint, and a fireplace with a floating mantle. This home also includes central air conditioning, a refrigerator, washer and dryer, blinds, fencing, and landscaping—all at no extra cost! Oregon's capital city is host to endless entertainment and outdoor recreation, such as enjoying old-growth forests along Silver Falls and playing a round of golf at Salem Golf Club. Nestled in the Willamette Valley, residents can experience award-winning vineyards, boutique shopping, and various dining options. Rendering is artist conception only. Photos are of a similar home, features and finishes will vary. Homesite 7. Estimated completion: February 2026. Flex credit/closing cost incentive available when financing with preferred lender! Use towards rate buydown and closing costs.
Extras & features
Washer, Dryer, Dishwasher, Disposal, Free-Standing Gas Range, Free-Standing Refrigerator, Microwave
Legal description
Coburn Terrace Homesite 7
Building amenities
Walk Score data provided by Walk Score®