/
$198,500
418days on marketSold$200,000 · January 12, 2026
$198,500
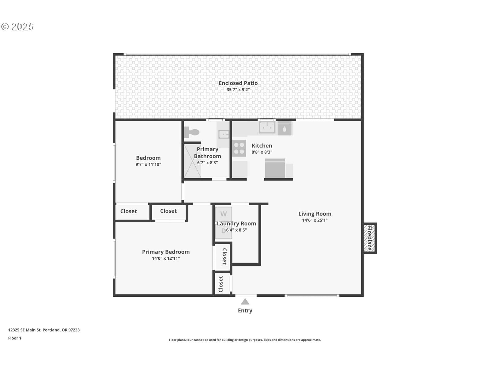
Welcome to this beautifully updated, light-filled 2-bedroom, 1-bath condo in a peaceful 55+ community, offering easy one-level living and exceptional value. Recent updates include a freshly painted interior, energy-efficient mini-splits, vinyl windows, updated kitchen appliances, a tiled walk-in shower, newer electrical panel and water heater. A washer and dryer are included for added convenience. The inviting living space features a cozy wood-burning fireplace, and hardwood floors beneath the carpet offer future potential to add even more warmth and character. Enjoy low-maintenance living with an HOA that takes care of the details, so you can focus on what matters most. Community amenities include a clubhouse, pool, and regularly scheduled activities that make it easy to stay active and connected. HOA dues are $421/month. Ideally located near Midland Library, shopping, and dining, this home delivers both comfort and convenience at an attractive new price. Come see the value for yourself and schedule your private showing today. [Home Energy Score = 5. HES Report at https://rpt.greenbuildingregistry.com/hes/OR10236254]
Extras & features
Gas Water Heater, Washer, Dryer, Dishwasher, Free-Standing Range, Free-Standing Refrigerator
Legal description
CLUB ESTATES EAST CONDOMINIUM, LOT 7, PARKING SP P7 GARAGE G7
Building amenities
Walk Score data provided by Walk Score®