Loading
Loading…
Fetching the latest data. This usually takes a moment.
Loading
Fetching the latest data. This usually takes a moment.
$759,000
235days on marketSold$725,000 · January 27, 2026
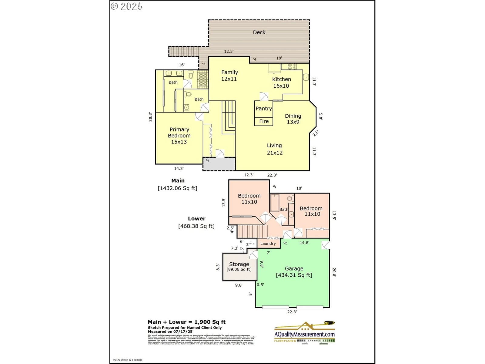
Modern Vibes Meet Laid-Back Living Near Lake Oswego. This one’s got style! Step into a sleek, fully remodeled contemporary home where clean lines, high ceilings, and skylights that flood the space with natural light. Open floorplan makes it just right for entertaining or simply kicking back. Think easy flow from kitchen to living to the deck, and flat yard where summer BBQs and evening hangouts just feel right. Inside, all-new flooring runs throughout, giving a cohesive look with zero fuss. The palette is smooth and sophisticated — soft grays with subtle accent tones that feel modern and warm. Three bedrooms offer flexibility for guests, a home office, or whatever your lifestyle needs. Tucked into a quiet, established neighborhood with territorial views, you’re close to the action but with breathing room. Grab coffee or dinner just minutes away at LO’s beloved restaurants and boutiques, or zip into Portland with ease — commuting or weekend exploring is a breeze. This is the kind of house you live inside and out — open the doors, let the kids and dogs run, throw on music, and live your life with space, light, and style. It’s not just a home. It’s a vibe. Curious about schools? You’ve got options. Excellent public and private schools nearby are great options. Check out what's available—there’s a lot to love. Move in ready!
Walk Score data provided by Walk Score®
Extras & features
Washer, Dryer, Built-In Range, Dishwasher, Disposal, Free-Standing Refrigerator, Microwave
Legal description
SUNDANCE, BLOCK 2, LOT 41
$759,000