/
Data Last Updated: 04/30/2026 12:58 PT
MLS-linked model range (not an appraisal or lending value). Lower model error suggests a tighter band.
Model error about 10% (AI estimate).
$2,500,000
3days on marketSend a showing request for 21717 S GRAPEVINE RD, West Linn, OR, 97068.
Hand-routed to Nate Brantley, Principal Broker & Founder. Same-day reply during business hours.
Sign in once with your email to send this showing request and keep spam out of the lead system.
This home sits in West Linn. The home was built in 2026, set into the rhythm of the neighborhood.
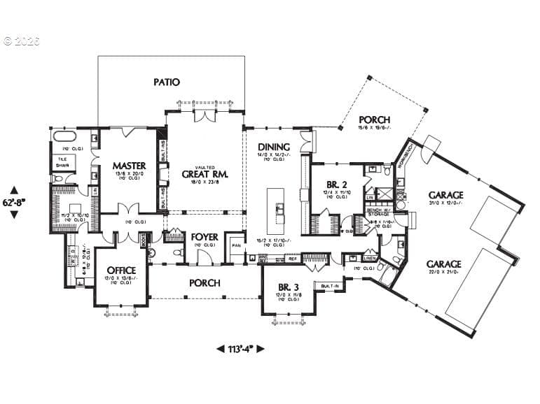
Proposed build to suit custom home. Step into a home designed around the way you live. This single-story residence offers the perfect balance of space, comfort, and thoughtful design. Featuring 3 generously sized bedrooms with ensuites, plus a dedicated office, this home is ideal for both everyday living and working from home. The open-concept layout seamlessly connects the kitchen, great room, and dining area—creating a bright, inviting space perfect for entertaining or relaxing with family. The kitchen is the heart of the home, designed with both functionality and style in mind, flowing effortlessly into the expansive, vaulted great room. Large windows invite natural light throughout, enhancing the home’s airy feel. Enjoy outdoor living from not just one, but three patios/porches—perfect for morning coffee, evening gatherings, or simply unwinding in your own private retreat. An oversized garage provides ample space for vehicles, storage, hobbies, or a workshop setup. This is more than a home—it’s an opportunity to tailor every detail to your lifestyle in a beautifully designed, spacious single-story layout. Proposed elevation and floorplan by Mascord Design Associates. Modifications and other plans are available to meet buyer's specifications. Adjacent 3 acre lot available as a build to suit also if a multigenerational site is of interest. Seller is licensed RE broker in the state of Oregon.
Extras & features
Dishwasher, Free-Standing Range
Legal description
568 ROSEMONT AC PT LTS 19&20
Walk Score data provided by Walk Score®