/
$1,399,000
5days on market$1,399,000
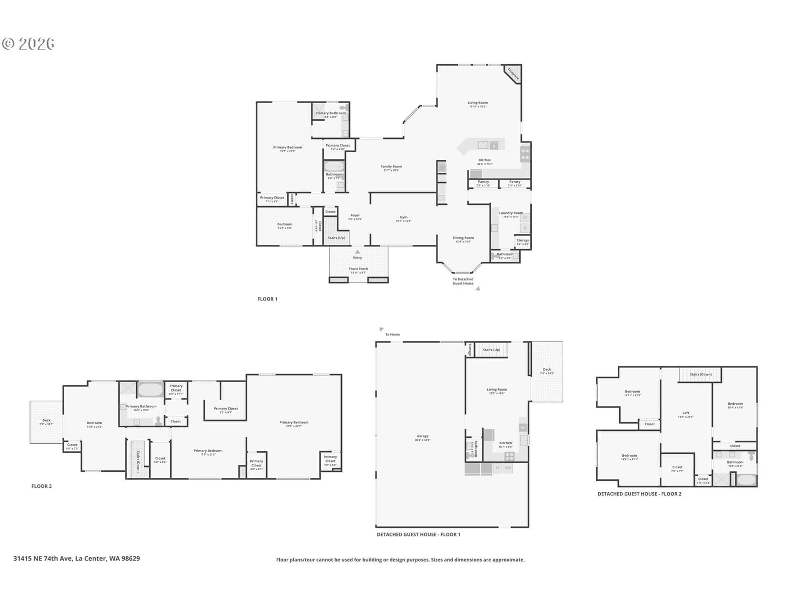
Is there a 4-bed single family home in La Center with acreage and an ADU for multigenerational living or rental potential? This gated 5.5 acre estate plus additional .65 acre tax lot includes a 4 bedroom main home and a 3 bedroom ADU with private entrance, expansive garage space, RV parking, and a well appointed kitchen built for everyday living and entertaining.4-bed single family home in La Center situated on over 6 acres across two tax lots, offering privacy, functionality, and long term versatility. The 2,672 sqft main residence features two primary suites, including one on the main level and an oversized upper level ensuite with generous closet space. The kitchen is designed for efficiency and style with double ovens, gas range, pot filler, island workspace, butlers pantry, granite counters, and durable tile flooring.The 1,320 sqft ADU spans two levels and includes 3 bedrooms plus loft and 1.5 baths with a private entrance, ideal for extended living arrangements or additional household space. Exterior highlights include gated entry, fenced, covered patio, two septic systems, water filtration system, water softener, and a 4 car detached garage with RV parking.This La Center property offers acreage living with room to grow, gather, and create long term value. Schedule your tour today.
Extras & features
Water Purifier, Water Softener, Convection Oven, Dishwasher, Disposal, Double Oven, Instant Hot Water, Plumbed For Ice Maker, Range Hood, Trash Compactor
Legal description
#30 SEC 8 T4N R2EWM 5.50A FOR ASSESSOR USE ONLY BEG SW COR OF NW1
Walk Score data provided by Walk Score®