Loading
Loading…
Fetching the latest data. This usually takes a moment.
Loading
Fetching the latest data. This usually takes a moment.
$474,900
334days on marketSold$479,649 · February 10, 2026
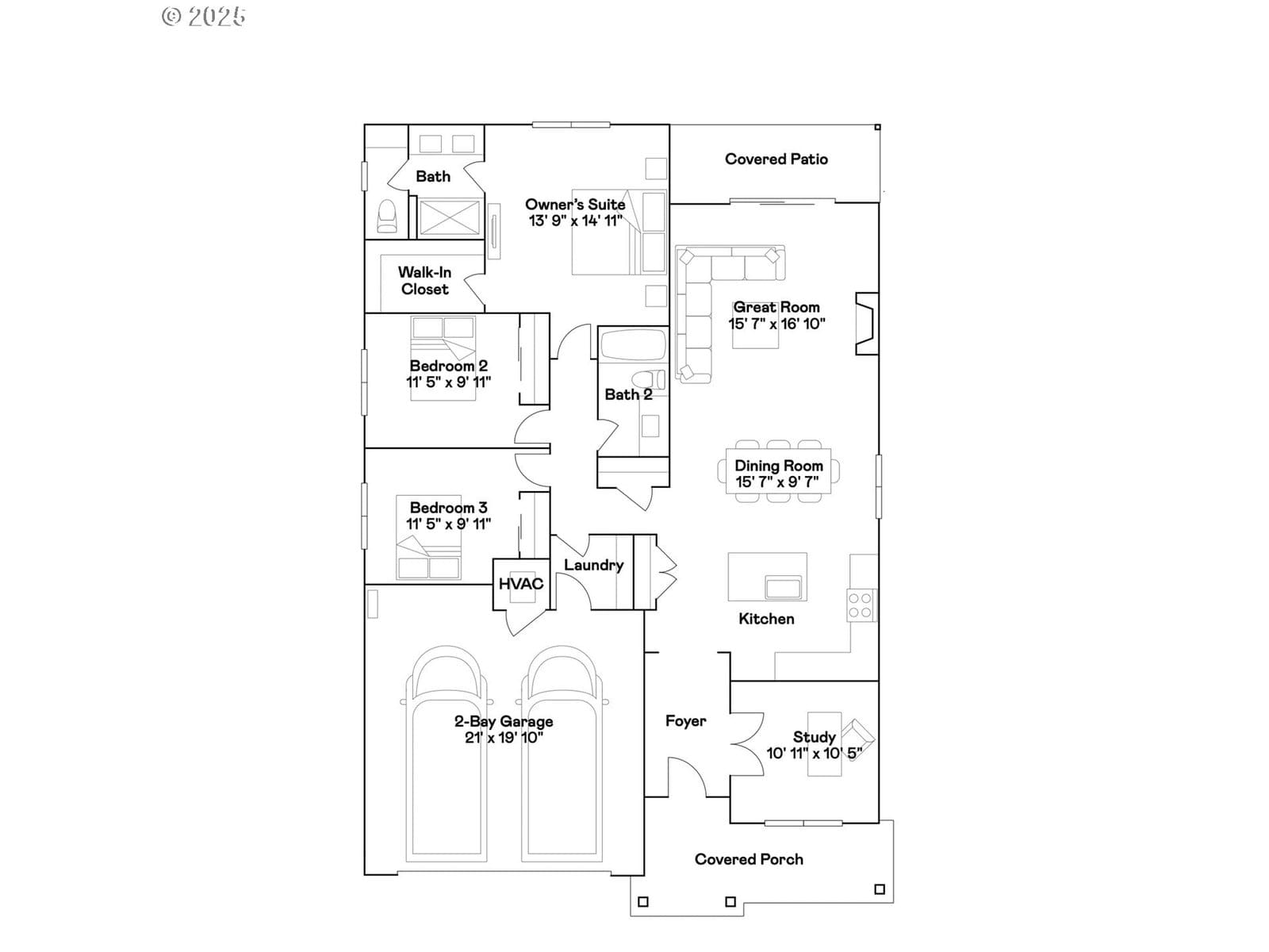
This new construction single-story Trenton plan in Parkview Terrace features an open-concept kitchen, dining area, and great room with cozy fireplace. Sliding doors lead to a back patio and fully landscaped yard. The primary suite includes a spacious bath and walk-in closet, while two secondary bedrooms sit across the hall, plus a front-facing study. Interior highlights include quartz countertops, shaker-style cabinets, LVP flooring, two-tone paint, landscaping, and fencing. Just 35 minutes from Portland and minutes to McMenamins Grand Lodge, residents enjoy nearby dining, entertainment, and weekend events. The Everything’s Included® package includes A/C, refrigerator, blinds, and a washer and dryer. Located on homesite 48, this home is move-in ready. Incentives available with the use of our preferred lender! Early Issue Title Insurance paid by Buyer if Cash.
Walk Score data provided by Walk Score®
Extras & features
Gas Water Heater, Dishwasher, Disposal, Free-Standing Gas Range, Free-Standing Refrigerator, Microwave
Legal description
PARKVIEW TERRACE, LENNAR TRENTON HOMESITE 48
$474,900
Building amenities