/
$799,000
262days on marketSold$780,000 · February 26, 2026
$799,000
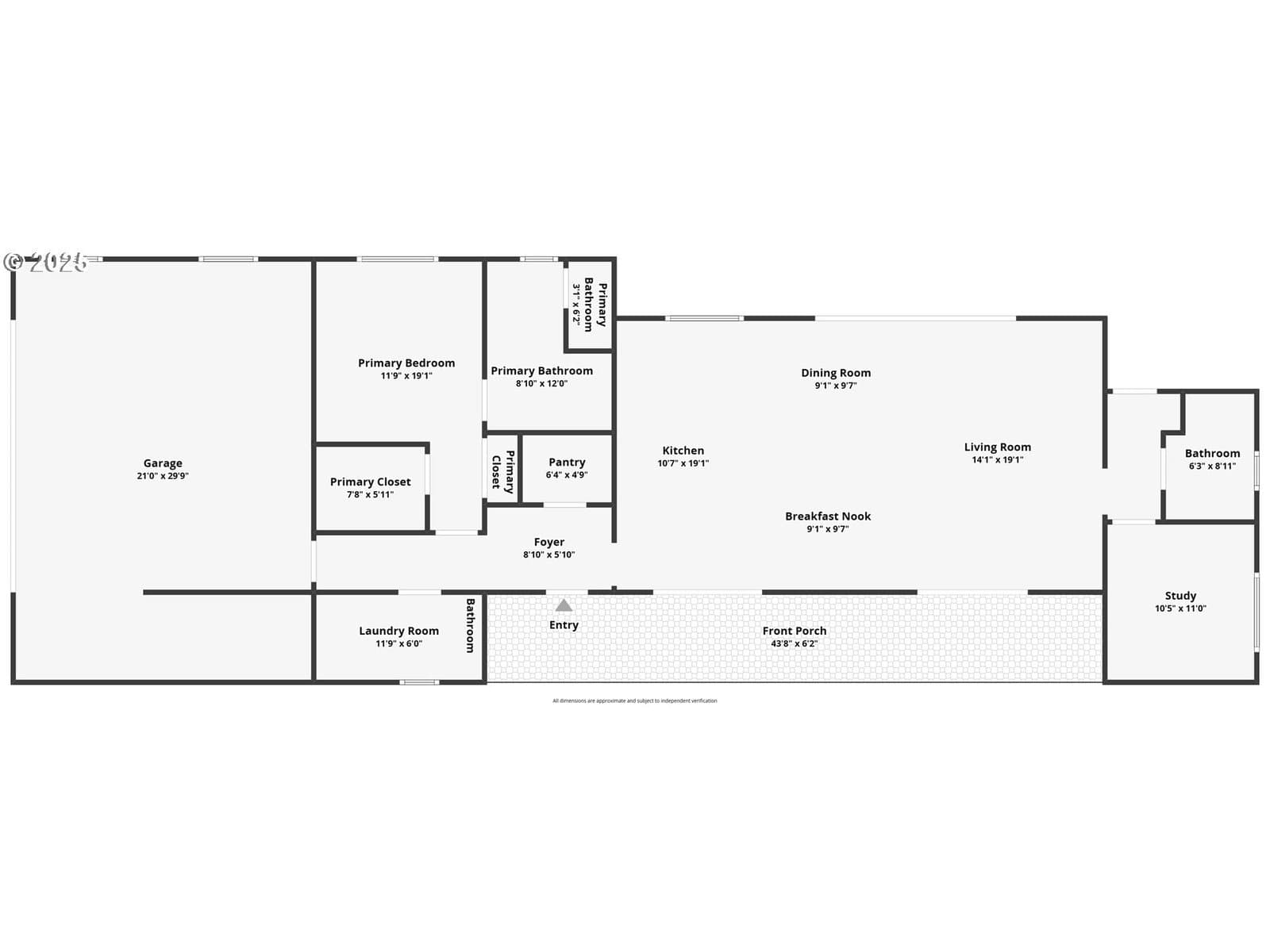
Tucked at the base of Mt. Hood, this newly built, modern single level home blends clean architectural design with everyday mountain living. Located just one mile from the town of Parkdale, 20 minutes to Hood River, and 35 minutes to Mt. Hood Meadows, the home offers easy access to outdoor recreation while remaining nearby local amenities. The thoughtfully designed 2 bedroom, 2.5 bath residence features 1,525 sq ft of open-concept living space filled with natural light. Oversized windows and sliders capture Mt. Hood views and create an airy, calming atmosphere throughout the home. A bonus Peak a boo view of Mt Adams from North side of the kitchen and porch. Minimalist design allows the architecture and setting to take center stage, offering a move-in-ready canvas for a variety of lifestyles. Covered concrete patios extend the living space outdoors, providing comfortable year-round areas for relaxing or entertaining. A secondary covered patio currently used as a hot tub area offers flexible future potential for expanded living space, guest accommodations, or a studio. The property is zoned to allow for an accessory dwelling unit (ADU), offering additional possibilities for future expansion, rental income, or multigenerational living. Whether you’re seeking a full-time residence, a weekend mountain retreat, or a work-from-home escape near Hood River and Mt. Hood, this modern Parkdale home delivers thoughtful design, scenic surroundings, and a convenient location.
Extras & features
Oven, Washer, Dryer, Built-In Refrigerator, Convection Oven, Dishwasher, ENERGY STAR Qualified Appliances, Induction Cooktop, Microwave, Plumbed For Ice Maker, Range Hood
Legal description
01S10E0605403
Walk Score data provided by Walk Score®