/
Data Last Updated: 05/17/2026 16:41 PT
$552,900
52days on marketSold$552,900 · March 27, 2026
Send a tour request for 800 MISTY LN, Forest Grove, OR, 97116.
Hand-routed to Nate Brantley, Principal Broker & Founder. You can expect a same-day reply during business hours.
Your contact details stay private to our team and are only used to coordinate this showing.
Sign in once with your email to send this showing request and keep spam out of the lead system.
We do not post your info publicly or share it outside your showing request.
This home sits in Forest Grove. The home was built in 2026, set into the rhythm of the neighborhood.
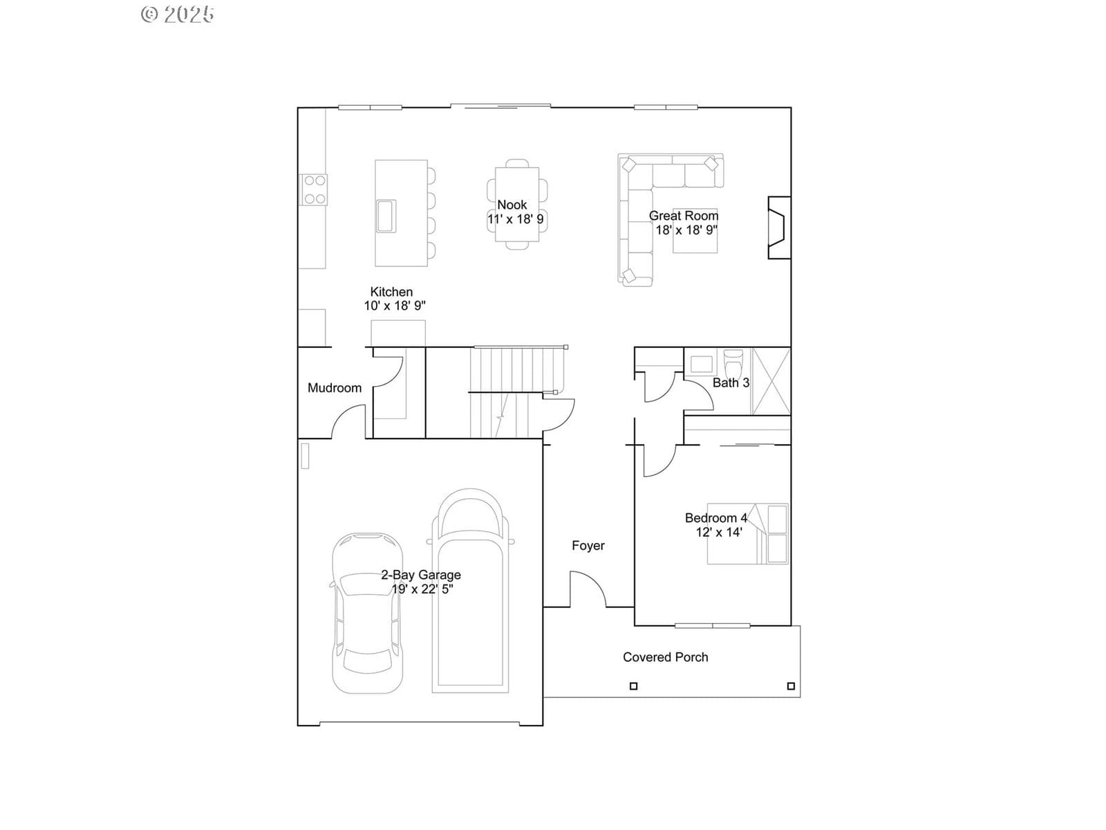
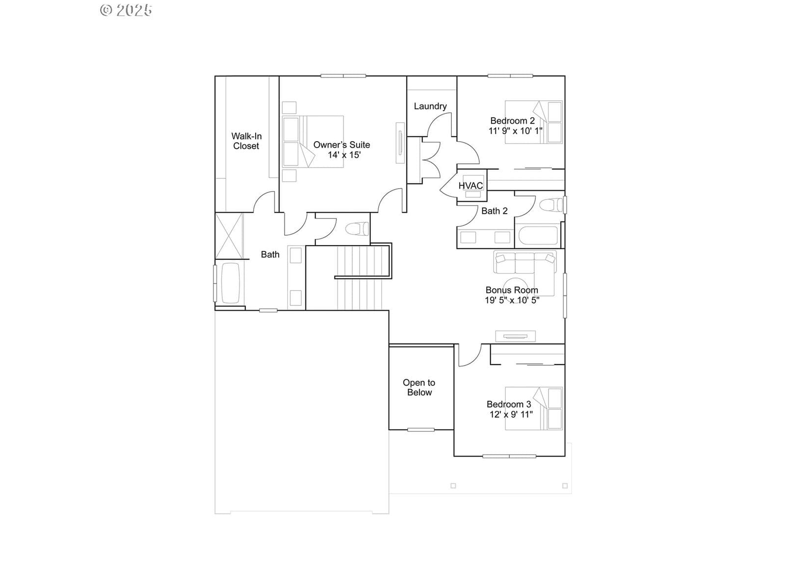
Welcome to Parkview Terrace by Lennar in idyllic Forest Grove. This new construction move-in ready Burlington plan welcomes you with a two-story foyer leading to a main floor secondary bedroom and full bath, perfect for guests or a home office. The open-concept main floor seamlessly connects the kitchen, dining area, and great room with a fireplace, and extends to the fully fenced and landscaped backyard. Upstairs, three bedrooms surround a versatile bonus room. The primary suite is a spacious retreat with a spa-inspired en-suite bathroom featuring a soaking tub, separate shower, dual vanities, and a generous walk-in closet. Interior highlights include quartz countertops, Shaker-style cabinets, LVP (luxury vinyl plank) flooring in the kitchen and entryway, LVT (luxury vinyl tile) flooring in the baths, a fireplace with a floating mantle, and two-tone interior paint. This home also includes central air conditioning, a refrigerator, washer and dryer, and blinds—all at no extra cost! Forest Grove is a charming small town surrounded by vineyards, farmland, and views of the Coast Range. It offers a relaxed, community-focused lifestyle with a historic downtown, local wineries, and easy access to outdoor adventures. It’s the perfect blend of scenic beauty and small-town warmth, all within a short drive of the Portland metro area. Rendering is artist conception only.
Extras & features
Gas Water Heater, Dishwasher, Disposal, ENERGY STAR Qualified Appliances, Free-Standing Gas Range, Free-Standing Refrigerator, Microwave
Legal description
PARKVIEW TERRACE, LOT 57, ACRES 0.13
Building amenities
Walk Score® data provided by Walk Score