/
Data Last Updated: 05/17/2026 16:41 PT
$350,000
80days on marketSold$359,000 · March 10, 2026
Send a tour request for 3506 COLUMBIA HEIGHTS RD, Longview, WA, 98632.
Hand-routed to Nate Brantley, Principal Broker & Founder. You can expect a same-day reply during business hours.
Your contact details stay private to our team and are only used to coordinate this showing.
Sign in once with your email to send this showing request and keep spam out of the lead system.
We do not post your info publicly or share it outside your showing request.
Set in COLUMBIA HEIGHTS, this home sits in Longview. The home was built in 1936, set into the rhythm of the neighborhood.
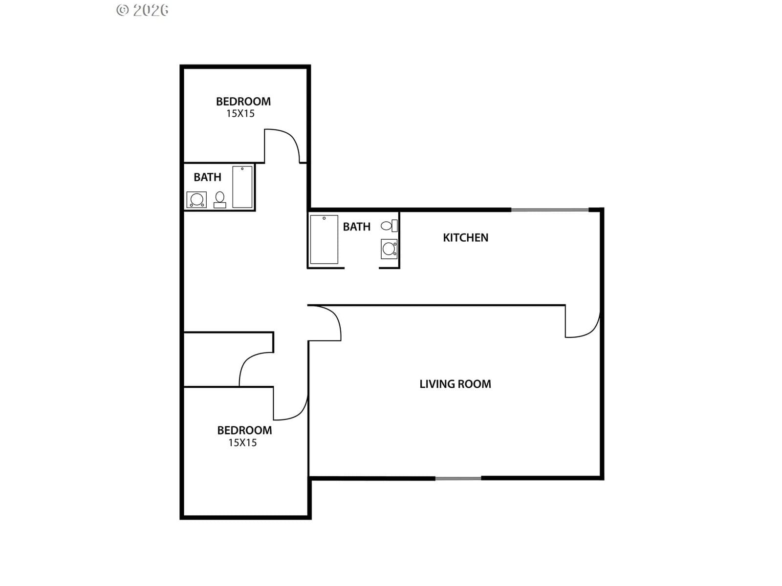
Wonderful location with a large, private lot! This home was originally a THREE BEDROOM and can easily be converted back to fit your needs.The spacious kitchen offers ample cabinet and counter space, with appliances that are less than four years old. The primary suite features its own private bathroom and two closets. Extra large family room area. The roof is less than 10 years old, and a NEW heat pump was installed in 2024. Additional updates include updated plumbing and water lines (2012), NEW vapor barrier installed in 2021 and brand-NEW attic insulation in 2026.Outside, you’ll find a detached two-car garage with plenty of storage, ample parking with room for your RV and a fully fenced yard with a gated driveway. The covered patio is perfect for outdoor entertaining year-round. This is the one you’ve been waiting for!
Extras & features
Dishwasher, Free-Standing Range, Free-Standing Refrigerator
Legal description
136 (COLUMBIA HGTS GDNS) -6 -4A,4B, 5A 21 -8N -2W EXC LOT 4A-1 FE
Walk Score® data provided by Walk Score