/
Data Last Updated: 05/17/2026 15:56 PT
$529,000
83days on marketSold$500,000 · April 1, 2026
Send a tour request for 171 Lenora LN, Kelso, WA, 98626.
Hand-routed to Nate Brantley, Principal Broker & Founder. You can expect a same-day reply during business hours.
Your contact details stay private to our team and are only used to coordinate this showing.
Sign in once with your email to send this showing request and keep spam out of the lead system.
We do not post your info publicly or share it outside your showing request.
This home sits in Kelso. The home was built in 1979, set into the rhythm of the neighborhood.
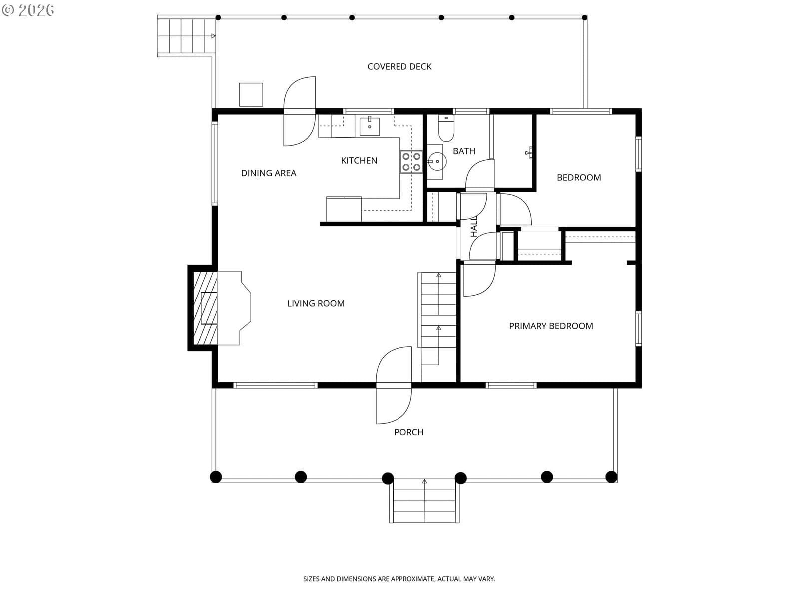
Secluded 1,848 sq.ft. log cabin on 5+ acres off Ostrander road, just a few minutes to I-5. Exposed wood throughout with vaulted ceilings on the upper level loft. Main level features living room with a cozy wood-burning fireplace & ductless heat pump. Finished basement offers a family room, laundry area, full bath and garage access. Covered front porch and back deck overlooking forest and wildlife. 2 car garage, under deck storage, RV/boat parking. Individual well & septic, Xfinity internet. Make your appointment today!
Legal description
1 -8N -2W T-16 EXC T-16A FEE 795651 EXC T-16B FEE 801333 EXC T-16
Walk Score® data provided by Walk Score