/
Data Last Updated: 05/30/2026 05:57 PT
$685,000
199days on marketSold$675,000 · March 7, 2026
Send a tour request for 6300 SHAKESPEARE ST, Lake Oswego, OR, 97035.
Hand-routed to Nate Brantley, Principal Broker & Founder. You can expect a same-day reply during business hours.
Your contact details stay private to our team and are only used to coordinate this showing.
Sign in once with your email to send this showing request and keep spam out of the lead system.
We do not post your info publicly or share it outside your showing request.
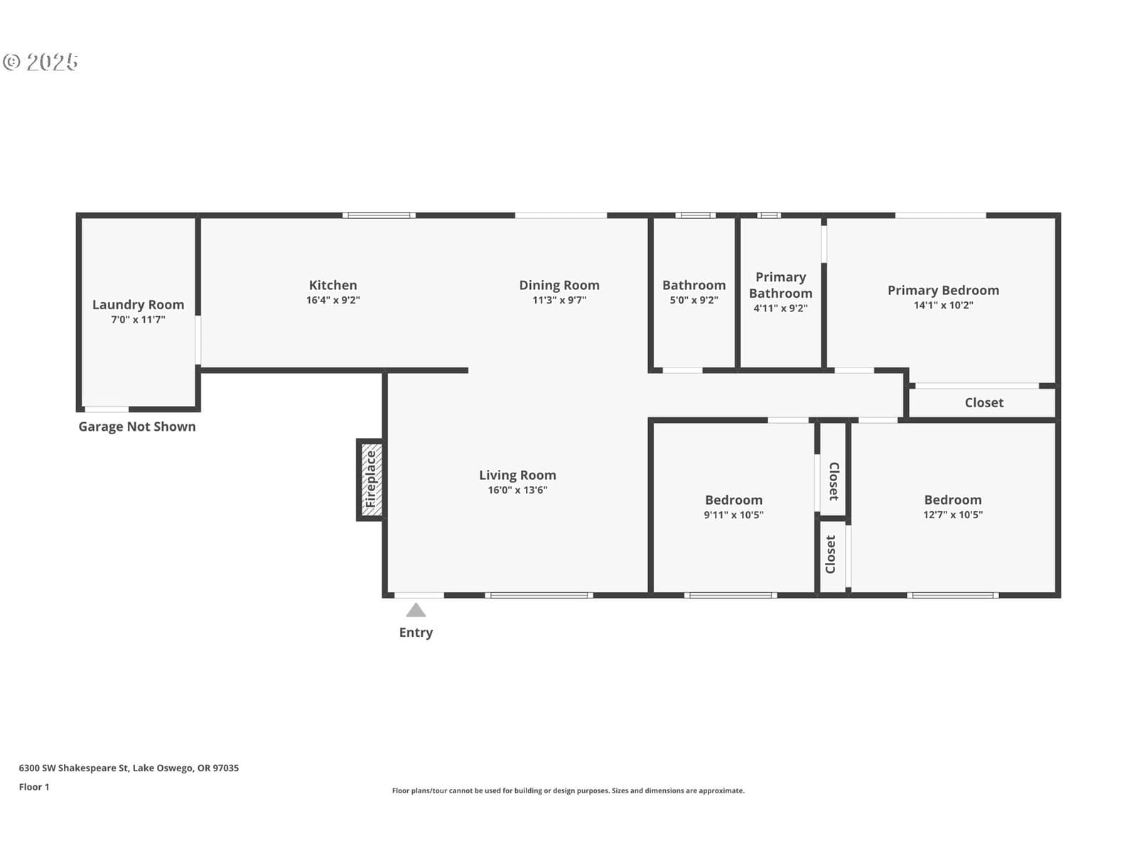
This home sits in Lake Oswego. The home was built in 1973, set into the rhythm of the neighborhood.
Move-In Ready Gem in Prime Lake Oswego Location! This stunning single-level home has been completely reimagined with modern design and high-end finishes throughout. Step inside to discover an all-new kitchen featuring quartz countertops, designer tile backsplash, sleek new cabinetry, and stainless-steel appliances. The home offers new flooring throughout, luxurious bathrooms, and a beautifully redesigned laundry space. Enjoy all-new windows that fill the home with natural light and create a warm, inviting atmosphere. Outside, the spacious yard offers plenty of room to relax, entertain, or play — all set on a quiet cul-de-sac in the sought-after Lake Grove School District. With easy freeway access and close proximity to shops, parks, and dining, this home perfectly balances style, comfort, and location. Truly move-in ready, this Lake Oswego gem has it all — the updates, the design, and the address.
Extras & features
Dishwasher, Free-Standing Range, Free-Standing Refrigerator, Microwave
Legal description
1813 ROBYN PARK LT 14
Walk Score data provided by Walk Score®