/
$257,000
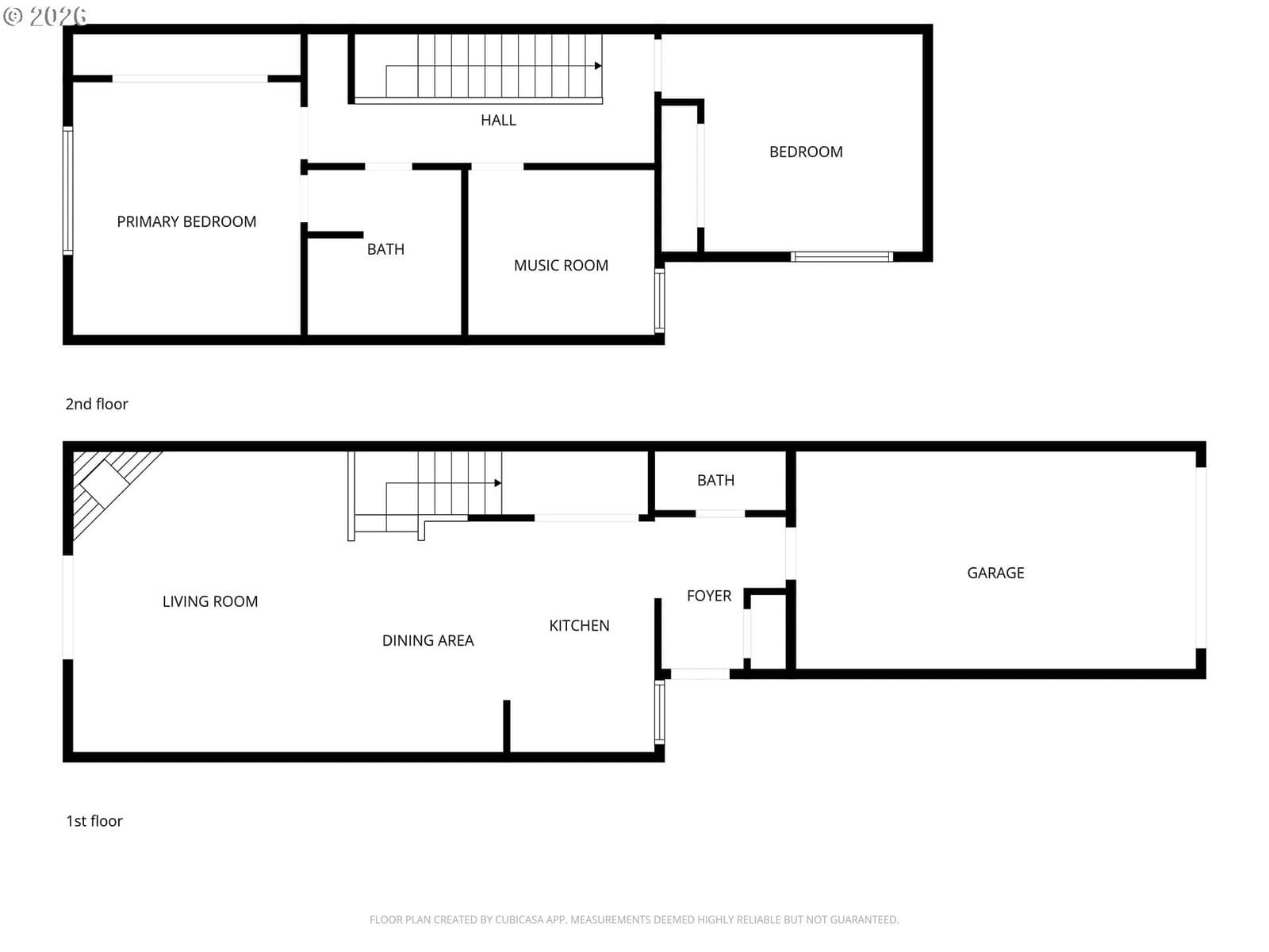
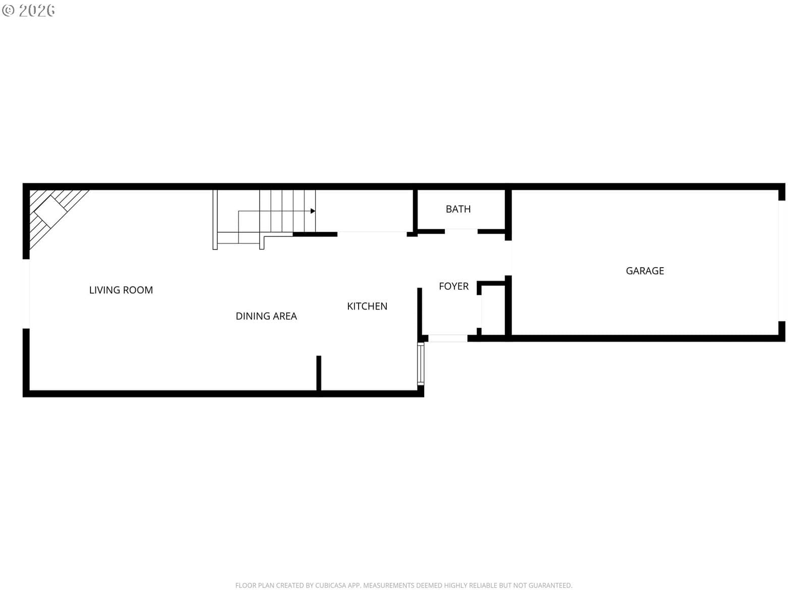
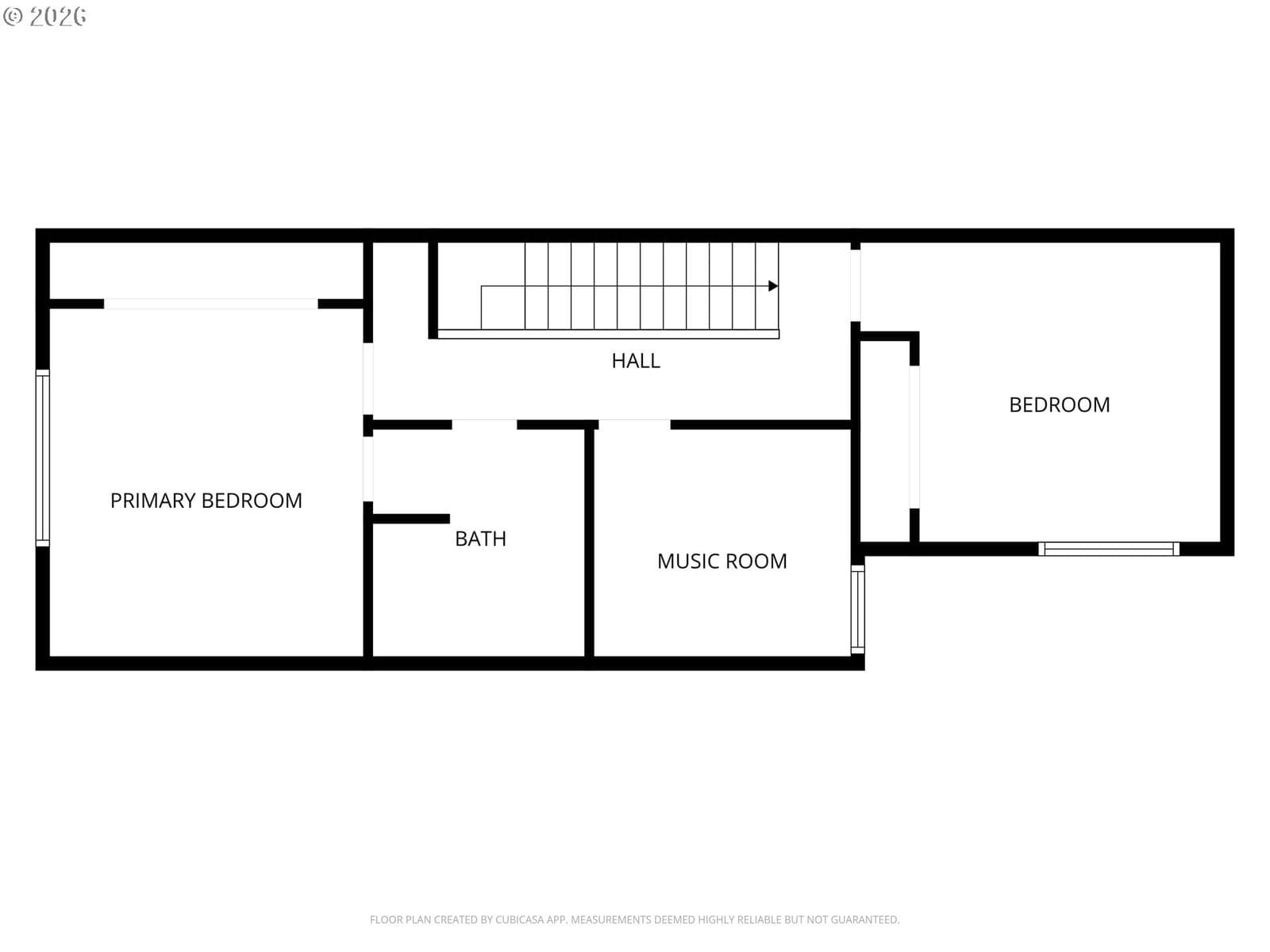
5days on marketUpdated South Salem Condo, live the easy life with no yard work. It is a quiet neighborhood close to great restaurants, entertainment, and a bus stop. updated kitchen with SS appliances, granite counters, gas fireplace, a shaded afternoon deck, and a sitting area next to the creek for your morning coffee in the sun. 2 nice-sized bedrooms plus an office. Laminate flooring downstairs, carpet up. Move-in ready. HOA pays W/S/G, landscape and exterior maintenance. New roof.
Extras & features
Gas Water Heater, Washer, Dryer, Dishwasher, Free-Standing Gas Range
Legal description
BROOKSIDE TOWNE HOMES CONDOMINIUMS, LOT UNIT 5
$257,000
Building amenities
Walk Score data provided by Walk Score®