/
Data Last Updated: 05/17/2026 12:42 PT
$349,900
41days on marketSold$386,000 · April 10, 2026
Send a tour request for 13670 SW 21ST ST, Beaverton, OR, 97008.
Hand-routed to Nate Brantley, Principal Broker & Founder. You can expect a same-day reply during business hours.
Your contact details stay private to our team and are only used to coordinate this showing.
Sign in once with your email to send this showing request and keep spam out of the lead system.
We do not post your info publicly or share it outside your showing request.
This home sits in Beaverton. The home was built in 1965, set into the rhythm of the neighborhood.
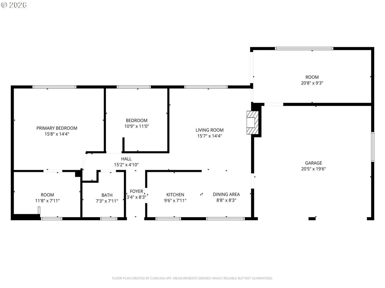
Fixer opportunity in an excellent neighborhood with strong upside potential. This 3-bedroom home currently has one operable bathroom, with an oversized space for a second full bathroom ready to be built out to create a primary suite. The third bedroom is located off the back of the garage (see floor plan for details). Features include a fireplace, an attached 2-car garage, and a large, level lot with a deck and fenced yard. Close to schools, parks, downtown Beaverton, Nike, and more. Home will not qualify for conventional financing; rehab loan or cash only.
Extras & features
Gas Water Heater
Legal description
WILSON PARK NO.03, LOT 93, ACRES 0.16
Walk Score data provided by Walk Score®